日本生命梅田ビル 4階-No.42601
中阪 浩之ナカサカ ヒロユキ
日本生命梅田ビルの豆知識
「日本生命梅田ビル」は、大阪市北区堂山町にございます賃貸事務所。
扇町通りに面した、大型の賃貸オフィスビルです。
大阪で人気№1の梅田エリア、コンビニエンスストアやカフェが入る、ロケーション・視認性ともに抜群。
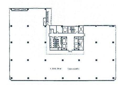
貸室基準階面積は、約350坪。
しっかりとしたビル構えが、安心感あるビジネス拠点。
管理も良く、快適なオフィススペースが確保されています。
地下街・ホワイティ梅田・泉の広場10番出入り口より100メートル。
各線「梅田駅」や「大阪駅」から徒歩圏内の好アクセス立地です。
日本生命梅田ビル 基本情報
| 種別 | 貸事務所(物件番号:42601) |
|---|---|
| 物件名 | 日本生命梅田ビル |
| 住所 | 大阪市北区堂山町3-3 |
| 所在階 | 4階部分号室 |
| 契約面積 | 40.0 坪・ 132.24 ㎡ |
| 賃料 | お電話・メールにてお問合下さい。 |
| 共益費 | お電話・メールにてお問合下さい。 |
| 月額合計 | お電話・メールにてお問合下さい。 |
| 敷金 | お電話・メールにてお問合下さい。 |
| 最寄駅 |
谷町線 『
東梅田 』
3 分
御堂筋線 『 梅田 』 6 分 環状線 『 大阪 』 7 分 |
| 構造 | 鉄骨鉄筋コンクリート造 11階建 /地下 2 階 |
| 築年数 | 1977/7 (リニューアル: 2008 ) |
| 設備
|
|
| エレベーター | 5基 |
営業マンの一言 梅田の大型賃貸事務所ビル大阪扇町通りに沿い好立地オフィス |
|

※取引態様:仲介
※上記、金額は募集条件です。 条件交渉など、詳細についてはお問合せ下さい。
※広告作成中に契約済みの場合はご容赦下さい。
※図面等現況が相違する場合は現況優先にてご容赦下さい。
日本生命梅田ビルの所在地周辺
物件を再検索する
日本生命梅田ビル 近隣のよく似た坪数の貸事務所
-
阪急グランドビル
大阪市北区角田町
谷町線「東梅田」徒歩2分
48.39坪 -
梅田辰巳ビル
大阪市北区神山町
谷町線「東梅田」徒歩4分
47.0坪 -
リアライズ梅田東ビル
大阪市北区曾根崎1
谷町線「東梅田」徒歩6分
42.59坪 -
梅田パシフィックビル
大阪市北区曾根崎2
谷町線「東梅田」徒歩3分
49.93坪 -
お初天神イーストビル
大阪市北区曾根崎2
谷町線「東梅田」徒歩3分
41.87坪 -
北区西天満4丁目事務所・店舗
大阪市北区西天満4
谷町線「東梅田」徒歩8分
49.57坪 -
DKビル(旧:電子会館)
大阪市北区西天満6
谷町線「東梅田」徒歩4分
42.86坪















