新大阪サンアールビル北館 5階-No.4325
中阪 浩之ナカサカ ヒロユキ
新大阪サンアールビル北館の豆知識
「新大阪サンアールビル北館」は、大阪市淀川区西中島5丁目にございます、賃貸事務所ビル。
1985年竣工、基準階面積が約205坪の10階建てオフィス。
2016年4月には、外壁・エントランスなどのリニューアルが完了。秋には、エレベーターのリニューアルも予定しており、管理良好なさらに快適な大阪ビジネス拠点に生まれ変わります。
貸室は20~30坪の広さが中心ですが、10坪以下の部屋もあり、少人数の大阪営業所にもオススメ。
大阪市内のみならず、各都市から大阪の玄関口となる“新大阪”は、交通アクセスの良いエリア。
JR新幹線、地下鉄御堂筋線の「新大阪駅」より徒歩5分です。
新大阪サンアールビル北館 基本情報
| 種別 | 貸事務所(物件番号:4325) |
|---|---|
| 物件名 | 新大阪サンアールビル北館 |
| 住所 | 大阪市淀川区西中島5-8-3 |
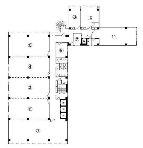
| 所在階 | 5階部分8号室 その他、貸室 |
| 契約面積 | 8.12 坪・ 26.85 ㎡ |
| 賃料 | 総額
64,960 円 (税抜)・坪単価
8,000 円/坪 (税抜) 総額 71,456 円(税含む) |
| 共益費 | 総額 24,360 円 (税抜)・坪単価 3,000 円/坪 (税抜) 総額 26,796 円 (税含む) |
| 月額合計 | 総額 89,320 円(税抜)・坪単価 11,000 円(税抜) 総額 98,252 円 (税含む) |
| 保証金 | 535,920 円 |
| 解約引 | 30% |
| 最寄駅 |
御堂筋線 『
新大阪 』
4 分
御堂筋線 『 西中島南方 』 5 分 |
| 構造 | 鉄骨鉄筋コンクリート造 10階建 |
| 築年数 | 1985/10 【新耐震基準】 (リニューアル: 2016/04 ) |
| 設備
|
|
| エレベーター | 3基 |
営業マンの一言 新大阪の賃貸事務所ビル2016年4月リニューアルの賃貸オフィスビル |
|

※取引態様:仲介
※上記、金額は募集条件です。 条件交渉など、詳細についてはお問合せ下さい。
※広告作成中に契約済みの場合はご容赦下さい。
※図面等現況が相違する場合は現況優先にてご容赦下さい。
新大阪サンアールビル北館の所在地周辺
新大阪サンアールビル北館 その他の部屋情報
入居テナント
物件を再検索する
新大阪サンアールビル北館 関連物件
新大阪サンアールビル北館 近隣のよく似た坪数の貸事務所
-
ハレオフィス新大阪
大阪市東淀川区東中島1
御堂筋線「新大阪」徒歩4分
9.38坪 -
第7新大阪ビル
大阪市淀川区西中島5
御堂筋線「新大阪」徒歩4分
8.2坪 -
オリエンタル新大阪ビル
大阪市淀川区西中島7
御堂筋線「新大阪」徒歩2分
6.23坪 -
新大阪阪急ビル
大阪市淀川区宮原1
御堂筋線「新大阪」徒歩1分
6.86坪 -
SORA新大阪21
大阪市淀川区西宮原2
御堂筋線「新大阪」徒歩4分
6.28坪 -
YSさくらビル
大阪市淀川区西宮原2
御堂筋線「新大阪」徒歩8分
8.94坪 -
新大阪エクセルビル
大阪市淀川区宮原1
御堂筋線「新大阪」徒歩3分
8.31坪 -
新大阪八千代ビル
大阪市淀川区宮原4
御堂筋線「新大阪」徒歩3分
6.29坪 -
PMO EX新大阪・H1O新大阪
大阪市淀川区宮原4
御堂筋線「新大阪」徒歩5分
7.31坪 -
新大阪千代田ビル別館
大阪市淀川区宮原4
御堂筋線「新大阪」徒歩6分
7.04坪




















