中之島SHビル 1~5階-No.44667
営業スタッフ紹介
堀中 忠久ホリナカ タダヒサ
中之島SHビル その他の貸室情報
中之島SHビル 基本情報
| 種別 | 事務所・店舗・倉庫(物件番号:44667) |
|---|---|
| 物件名 | 中之島SHビル |
| 住所 | 大阪市北区中之島6-1-21 |
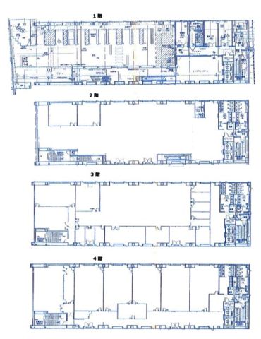
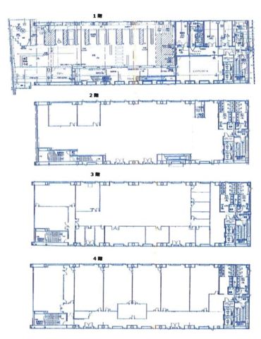
| 所在階 | 1~5階部分1棟貸号室 |
| 契約面積 | 1283.37 坪・ 4,242.54 ㎡ |
| 最寄駅 | 京阪中之島線 『 中之島 』 4 分 |
| 構造 | 鉄骨造 5階建 |
| 築年数 | 2005/1 【新耐震基準】 |
| 設備
|
|
| エレベーター | 2基 |
営業マンの一言 立地も良く 1階、253.37坪・2・3・4・5階は各257.5坪のハイグレードビルの1棟貸です。 |
|

※取引態様:仲介
※上記、金額は募集条件です。 条件交渉など、詳細についてはお問合せ下さい。
※広告作成中に契約済みの場合はご容赦下さい。
※図面等現況が相違する場合は現況優先にてご容赦下さい。
中之島SHビルの所在地周辺
ストリートビューを表示▼


















