西島ビル 6階-No.45170
西島ビル 基本情報
| 種別 | 貸事務所(物件番号:45170) |
|---|---|
| 物件名 | 西島ビル |
| 住所 | 大阪市中央区備後町3-3-1 |
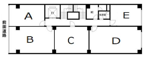
| 所在階 | 6階部分号室 その他、貸室 |
| 契約面積 | 10.96 坪・ 36.24 ㎡ |
| 賃料 | 総額
82,200 円 (税抜)・坪単価
7,500 円/坪 (税抜) 総額 90,420 円(税含む) |
| 共益費 | 総額 賃料に含む (税抜)・坪単価 賃料に含む (税抜) 総額 賃料に含む (税含む) |
| 月額合計 | 総額 82,200 円(税抜)・坪単価 7,500 円(税抜) 総額 90,420 円 (税含む) |
| 敷金 | 3ヶ月 |
| 礼金 | 3ヶ月 |
| 費用備考 | 賃貸保証加入要 |
| 最寄駅 |
御堂筋線 『
本町 』
2 分
四ツ橋線 『 本町 』 7 分 |
| 構造 | 鉄筋コンクリート造 7階建 /地下 1 階 |
| 築年数 | 1968/1 |
| 設備
|
|
| エレベーター | 1基 |
営業マンの一言 本町エリアの小規模オフィス(賃料は十分に相談できます。) |
|

※取引態様:仲介
※上記、金額は募集条件です。 条件交渉など、詳細についてはお問合せ下さい。
※広告作成中に契約済みの場合はご容赦下さい。
※図面等現況が相違する場合は現況優先にてご容赦下さい。
西島ビルの所在地周辺
西島ビル その他の部屋情報
物件を再検索する
西島ビル 近隣のよく似た坪数の貸事務所
-
創建御堂筋ビル
大阪市中央区淡路町3
御堂筋線「本町」徒歩3分
13.91坪 -
FOBOS ビル
大阪市中央区淡路町4
御堂筋線「本町」徒歩4分
10.67坪 -
瓦町ビル(旧:キューアス瓦町)
大阪市中央区瓦町3
御堂筋線「本町」徒歩5分
11.5坪 -
おおきに御堂筋瓦町ビル
大阪市中央区瓦町4
御堂筋線「本町」徒歩3分
14.81坪 -
瓦町浪速ビル
大阪市中央区瓦町4
御堂筋線「本町」徒歩3分
15.0坪 -
久宝ビル
大阪市中央区北久宝寺町4
御堂筋線「本町」徒歩3分
12.7坪 -
北久宝寺店舗
大阪市中央区北久宝寺町4
御堂筋線「本町」徒歩3分
10.98坪 -
本町アーバンライフ
大阪市中央区北久宝寺町4
御堂筋線「本町」徒歩4分
13.11坪 -
グランディール本町
大阪市中央区久太郎町3
御堂筋線「本町」徒歩5分
13.85坪 -
大阪センタービル
大阪市中央区久太郎町4
御堂筋線「本町」徒歩0分
13.37坪







中阪 浩之













