FUKU BLD三休橋(フクビル三休橋) 7階-No.45228
堀中 忠久ホリナカ タダヒサ
FUKU BLD三休橋(フクビル三休橋)の豆知識
「FUKU BLD三休橋(フクビル三休橋)」は、大阪市中央区平野町2丁目にございます、賃貸事務所・テナントビル。
大阪のメインストリート“御堂筋”と“堺筋”の中間にある“三休橋筋”に面した、間口の広い8階建て。
2007年にリニューアルが完了し、オシャレなデザインオフィスに生まれ変わりました。
貸室は、約8坪~20坪の広さが中心。
新規事務所開設や4~5名様の営業所に最適なオフィスです。
交通アクセスは、大阪メトロ御堂筋線の「淀屋橋駅」、堺筋線の「北浜駅」より徒歩5分。
京阪本線の「北浜駅」や地下鉄の「本町駅」・「堺筋本町駅」からも徒歩圏内。
フットワークの良いオフィス拠点で、ビジネス効率もアップ。
電線が地中化され、ガス燈が灯る“三休橋筋”は、洗練された街として注目のエリア。
「綿業会館」をはじめとした近代建築もみられ、その佇まいに調和したオシャレなカフェやレストラン、ギャラリーなどのお店が並んでいます。
FUKU BLD三休橋(フクビル三休橋) 基本情報
| 種別 | 貸事務所(物件番号:45228) |
|---|---|
| 物件名 | FUKU BLD三休橋(フクビル三休橋) |
| 住所 | 大阪市中央区平野町2-5-14 |
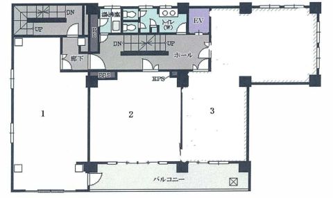
| 所在階 | 7階部分2号室 その他、貸室 |
| 契約面積 | 15.85 坪・ 52.40 ㎡ |
| 賃料 | 総額
159,000 円 (税抜)・坪単価
10,032 円/坪 (税抜) 総額 174,900 円(税含む) |
| 共益費 | 総額 48,000 円 (税抜)・坪単価 3,028 円/坪 (税抜) 総額 52,800 円 (税含む) |
| 月額合計 | 総額 207,000 円(税抜)・坪単価 13,060 円(税抜) 総額 227,700 円 (税含む) |
| 敷金 | 2ヶ月 |
| 礼金 | 3ヶ月 |
| 費用備考 | 賃貸保証加入要/火災保険加入要 |
| 最寄駅 |
堺筋線 『
北浜 』
5 分
御堂筋線 『 淀屋橋 』 5 分 御堂筋線 『 本町 』 8 分 |
| 構造 | 鉄筋コンクリート造 8階建 /地下 1 階 |
| 築年数 | 1973/6 (リニューアル: 2007/09 ) |
| 設備
|
|
| エレベーター | 1基 |
営業マンの一言 三休橋筋面すリニューアルビル大阪メトロ御堂筋線 淀屋橋駅、大阪メトロ堺筋線 北浜駅徒歩圏内 大阪中心地・三休橋筋沿い・オシャレな賃貸オフィスビルです。 |
|

※取引態様:仲介
※上記、金額は募集条件です。 条件交渉など、詳細についてはお問合せ下さい。
※広告作成中に契約済みの場合はご容赦下さい。
※図面等現況が相違する場合は現況優先にてご容赦下さい。
FUKU BLD三休橋(フクビル三休橋)の所在地周辺
FUKU BLD三休橋(フクビル三休橋) その他の部屋情報
| 階 | 号室 | 坪数 | ㎡数 | 賃料 | 共益費 | 敷金 | |
|---|---|---|---|---|---|---|---|
| 2階 | 10.23坪 | 33.82㎡ | 103,000 円 | 31,000 円 | 2ヶ月 | ![]() |
|
| 5階 | 1 | 19.83坪 | 65.56㎡ | お電話・メールにて お問い合わせください。 | ![]() |
||
入居テナント
物件を再検索する
FUKU BLD三休橋(フクビル三休橋) 関連物件
FUKU BLD三休橋(フクビル三休橋) 近隣のよく似た坪数の貸事務所
-
岡田ビル
大阪市北区西天満1
堺筋線「北浜」徒歩4分
17.54坪 -
西天満あさひビル
大阪市北区西天満1
堺筋線「北浜」徒歩6分
15.36坪 -
北ビル1号館
大阪市北区西天満4
堺筋線「北浜」徒歩9分
17.89坪 -
北浜MDビル
大阪市中央区北浜1
堺筋線「北浜」徒歩2分
20.0坪 -
EDKビル
大阪市中央区北浜2
堺筋線「北浜」徒歩1分
19.98坪 -
入商八木ビル
大阪市中央区北浜2
堺筋線「北浜」徒歩1分
18.8坪 -
大阪松田ビル
大阪市中央区北浜2
堺筋線「北浜」徒歩1分
15.04坪 -
北浜小谷ビル
大阪市中央区北浜2
堺筋線「北浜」徒歩1分
15.71坪 -
北三ビル
大阪市中央区北浜2
堺筋線「北浜」徒歩2分
16.7坪 -
アイケイビル
大阪市中央区高麗橋2
堺筋線「北浜」徒歩3分
15.5坪






















