堺筋千島ビル 6階-No.45336
丹羽 美智子ニワミチコ
堺筋千島ビルの豆知識
「堺筋千島ビル」は、大阪市中央区淡路町2丁目にございます、賃貸事務所ビル。
堺筋に面した8階建て。
大型ビルが多くある、大阪の金融・経済中心地“北浜”では、規模としては小ぶりですが、1階にコメダ珈琲店があり、視認性の優れたオフィスビルです。
貸室は、約10~15坪のお部屋が中心。
ビジネス街でコンパクトな貸事務所をお探しの方に最適。
京阪本線や大阪市営地下鉄堺筋線の「北浜駅」から徒歩5分の交通至便。
「堺筋本町駅」や御堂筋沿線からも徒歩アクセスが可能な、フットワークの良いビジネス拠点です。
北浜界隈は、大阪取引所を中心に、銀行や証券会社等金融関連の企業が多く集まるエリア。また昨今は超高層マンション“北浜タワー”を中心に、“五感”等オシャレなお店が続々とオープンしています。
堺筋千島ビル 基本情報
| 種別 | 貸事務所(物件番号:45336) |
|---|---|
| 物件名 | 堺筋千島ビル
敷金無し・礼金3ヶ月のみ!保証会社にご加入頂きます。 |
| 住所 | 大阪市中央区淡路町2-1-1 |
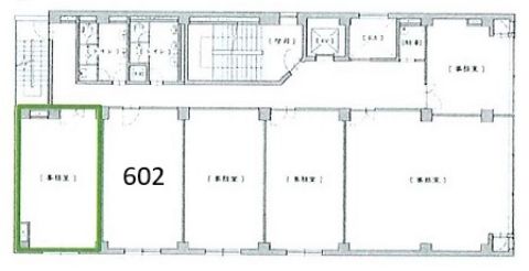
| 所在階 | 6階部分2号室 |
| 契約面積 | 9.4 坪・ 31.08 ㎡ |
| 賃料 | 総額
94,000 円 (税抜)・坪単価
10,000 円/坪 (税抜) 総額 103,400 円(税含む) |
| 共益費 | 総額 18,800 円 (税抜)・坪単価 2,000 円/坪 (税抜) 総額 20,680 円 (税含む) |
| 月額合計 | 総額 112,800 円(税抜)・坪単価 12,000 円(税抜) 総額 124,080 円 (税含む) |
| 敷金 | 94,000 円 |
| 礼金 | 206,800円(税含む) |
| 費用備考 | 賃貸保証加入要 |
| 最寄駅 |
堺筋線 『
北浜 』
3 分
堺筋線 『 堺筋本町 』 5 分 御堂筋線 『 本町 』 8 分 |
| 構造 | 鉄骨鉄筋コンクリート造 8階建 /地下 1 階 |
| 築年数 | 1977/11 |
| 設備
|
|
| エレベーター | 1基 |
営業マンの一言 北浜エリア貸事務所北浜駅近くの大通りに面した好立地、貸事務所・1階にコメダ珈琲が在り利便性が良い貸事務所ビル! |
|

※取引態様:仲介
※上記、金額は募集条件です。 条件交渉など、詳細についてはお問合せ下さい。
※広告作成中に契約済みの場合はご容赦下さい。
※図面等現況が相違する場合は現況優先にてご容赦下さい。
堺筋千島ビルの所在地周辺
入居テナント
物件を再検索する
堺筋千島ビル 近隣のよく似た坪数の貸事務所
-
大阪JAビル
大阪市北区西天満1
堺筋線「北浜」徒歩3分
10.0坪 -
西天満USUIビル
大阪市北区西天満1
堺筋線「北浜」徒歩3分
6.0坪 -
老松コーポ
大阪市北区西天満3
堺筋線「北浜」徒歩4分
9.71坪 -
大三ビル
大阪市北区西天満3
堺筋線「北浜」徒歩6分
8.67坪 -
Y’s Kitahama(ワイズキタハマ)
大阪市中央区今橋1
堺筋線「北浜」徒歩1分
9.43坪 -
北浜三ツ星ビル
大阪市中央区北浜1
堺筋線「北浜」徒歩1分
7.05坪 -
北浜近商ビル
大阪市中央区北浜1
堺筋線「北浜」徒歩3分
6.5坪 -
大阪平和ビル
大阪市中央区北浜1
堺筋線「北浜」徒歩2分
7.19坪 -
北浜宗田ビル
大阪市中央区北浜1
堺筋線「北浜」徒歩1分
10.0坪 -
VIP関西センタービル
大阪市中央区北浜2
堺筋線「北浜」徒歩1分
7.5坪


















