第3ユヤマビル 6階-No.45538
第3ユヤマビル 基本情報
| 種別 | 貸事務所(物件番号:45538) |
|---|---|
| 物件名 | 第3ユヤマビル |
| 住所 | 大阪市淀川区西中島4-6-29 |
| 所在階 | 6階部分A号室 その他、貸室 |
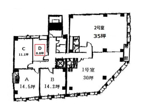
| 契約面積 | 14.5 坪・ 47.94 ㎡ |
| 賃料 | 総額
116,000 円 (税抜)・坪単価
8,000 円/坪 (税抜) 総額 127,600 円(税含む) |
| 共益費 | 総額 賃料に含む (税抜)・坪単価 賃料に含む (税抜) 総額 賃料に含む (税含む) |
| 月額合計 | 総額 116,000 円(税抜)・坪単価 8,000 円(税抜) 総額 127,600 円 (税含む) |
| 保証金 | 580,000 円 |
| 解約引 | 5年未満30%引・10年未満20%・15年未満10%・以降全額返還 |
| 最寄駅 | 御堂筋線 『 西中島南方 』 3 分 |
| 構造 | 鉄筋コンクリート造 8階建 |
| 築年数 | 1984/ 【新耐震基準】 (リニューアル: 済 ) |
| 設備
|
|
| エレベーター | 1基 |
営業マンの一言 大通りに面した角ビル全室彩光良好!!価格も相談できお勧めオフィスビルです。 |
|

※取引態様:仲介
※上記、金額は募集条件です。 条件交渉など、詳細についてはお問合せ下さい。
※広告作成中に契約済みの場合はご容赦下さい。
※図面等現況が相違する場合は現況優先にてご容赦下さい。
第3ユヤマビルの所在地周辺
第3ユヤマビル その他の部屋情報
物件を再検索する
第3ユヤマビル 関連物件
第3ユヤマビル 近隣のよく似た坪数の貸事務所
-
新大阪第二日大ビル
大阪市東淀川区東中島1
御堂筋線「西中島南方」徒歩5分
12.0坪 -
K2-EAST
大阪市淀川区木川東2
御堂筋線「西中島南方」徒歩5分
10.3坪 -
オパル新大阪ビル
大阪市淀川区木川東4
御堂筋線「西中島南方」徒歩6分
10.94坪 -
新大阪ストロングビル
大阪市淀川区西中島1
御堂筋線「西中島南方」徒歩2分
12.14坪 -
新大阪サンアールビル南別館
大阪市淀川区西中島1
御堂筋線「西中島南方」徒歩3分
14.26坪 -
新大阪サンアールビル南館
大阪市淀川区西中島1
御堂筋線「西中島南方」徒歩3分
11.66坪 -
メゾン淀川 (スモールオフィス)
大阪市淀川区西中島1
御堂筋線「西中島南方」徒歩2分
14.04坪 -
三基ビル
大阪市淀川区西中島1
御堂筋線「西中島南方」徒歩2分
13.37坪 -
アルバート新大阪ビル
大阪市淀川区西中島1
御堂筋線「西中島南方」徒歩4分
12.33坪 -
NLCサクセスビルイースト
大阪市淀川区西中島3
御堂筋線「西中島南方」徒歩3分
14.86坪




中阪 浩之













