大阪JAビル 9階-No.45784
大阪JAビル 基本情報
| 種別 | 貸事務所(物件番号:45784) | 
|---|---|
| 物件名 | 大阪JAビル | 
| 住所 | 大阪市北区西天満1-2-5 | 
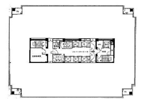
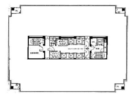
| 所在階 | 9階部分号室 その他、貸室 | 
| 契約面積 | 347.68 坪・ 1,149.36 ㎡ | 
| 賃料 | お電話・メールにてお問合下さい。 | 
| 共益費 | お電話・メールにてお問合下さい。 | 
| 月額合計 | お電話・メールにてお問合下さい。 | 
| 敷金 | お電話・メールにてお問合下さい。 | 
|  | |
| 最寄駅 | 堺筋線                  『
                  北浜                  』
                  3                  分 京阪中之島線 『 なにわ橋 』 2 分 御堂筋線 『 淀屋橋 』 10 分 | 
| 構造 | 鉄骨鉄筋コンクリート造 15階建 /地下 2 階 | 
| 築年数 | 1983/10 【新耐震基準】 (リニューアル: 済 ) | 
| 設備 | |
| エレベーター | 6基 | 
| 営業マンの一言ハイグレードビル | |
| 備考 | 貸し会議室/リフレッシュルーム | 

※取引態様:仲介
            ※上記、金額は募集条件です。 条件交渉など、詳細についてはお問合せ下さい。
            ※広告作成中に契約済みの場合はご容赦下さい。
            ※図面等現況が相違する場合は現況優先にてご容赦下さい。
大阪JAビルの所在地周辺
ストリートビューを表示▼
大阪JAビル その他の部屋情報
物件を再検索する
大阪JAビル 関連物件
大阪JAビル 近隣のよく似た坪数の貸事務所
- 
                    北浜ネクスビルディング(NEXU BUILD)大阪市中央区北浜東 
 堺筋線「北浜」徒歩6分
 325.95坪
- 
                    平野町センチュリービル大阪市中央区平野町2 
 堺筋線「北浜」徒歩4分
 218.66坪
- 
                    三井住友銀行高麗橋ビル大阪市中央区伏見町2 
 堺筋線「北浜」徒歩1分
 232.92坪

 お問合せリスト・物件リクエスト
 お問合せリスト・物件リクエスト 電話でお問合せ
 電話でお問合せ



 
                  
                


 
                                   






 中阪 浩之
中阪 浩之



















