まるみやビル 5階-No.46206
堀中 忠久ホリナカ タダヒサ
まるみやビルの豆知識
「まるみやビル」は、大阪市淀川区西中島4丁目にございます、賃貸事務所ビル。
ビルらしいカッチリした構えの8階建て。
大阪市営地下鉄・御堂筋線の「西中島南方駅」より徒歩4分。
「新大阪駅」からも、徒歩7分の交通アクセスです。
“新大阪”は、大阪市内はもちろん、新幹線・空港利用と、各都市へのフットワークの良さが人気のビジネス拠点。
それら好立地にプラスして、「まるみやビル」は、エレベーター2基、個別空調、機械警備、駐車場とビルスペックが充実。
また角ビルですので、90%以上のお部屋で自然採光がとれ、快適なワークスペースが確保されています。
貸室面積は、約9坪からございます。
少人数の企業様で、新大阪エリアのオフィス開設・移転をお考え方、必見の賃貸事務所物件です。
まるみやビル 基本情報
| 種別 | 貸事務所(物件番号:46206) |
|---|---|
| 物件名 | まるみやビル |
| 住所 | 大阪市淀川区西中島4-7-18 |
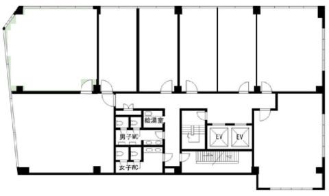
| 所在階 | 5階部分1-5号室 その他、貸室 |
| 契約面積 | 36.01 坪・ 119.05 ㎡ |
| 賃料 | 総額
252,070 円 (税抜)・坪単価
7,000 円/坪 (税抜) 総額 277,277 円(税含む) |
| 共益費 | 総額 108,030 円 (税抜)・坪単価 3,000 円/坪 (税抜) 総額 118,833 円 (税含む) |
| 月額合計 | 総額 360,100 円(税抜)・坪単価 10,000 円(税抜) 総額 396,110 円 (税含む) |
| 敷金 | 3,601,000 円 |
| 解約引 | 45% |
| 最寄駅 |
御堂筋線 『
西中島南方 』
4 分
御堂筋線 『 新大阪 』 7 分 |
| 構造 | 鉄骨鉄筋コンクリート造 8階建 |
| 築年数 | 1990/1 【新耐震基準】 |
| 設備
|
|
| エレベーター | 2基 |
営業マンの一言 角ビルです。新大阪エリアの賃貸事務所ビル 機械警備・個別空調・24時間利用可能 管理充実 |
|

※取引態様:仲介
※上記、金額は募集条件です。 条件交渉など、詳細についてはお問合せ下さい。
※広告作成中に契約済みの場合はご容赦下さい。
※図面等現況が相違する場合は現況優先にてご容赦下さい。
まるみやビルの所在地周辺
まるみやビル その他の部屋情報
物件を再検索する
まるみやビル 近隣のよく似た坪数の貸事務所
-
新大阪第二日大ビル
大阪市東淀川区東中島1
御堂筋線「西中島南方」徒歩5分
32.16坪 -
テック新大阪ビル
大阪市淀川区木川東4
御堂筋線「西中島南方」徒歩9分
33.32坪 -
新中島ビル
大阪市淀川区西中島1
御堂筋線「西中島南方」徒歩3分
34.0坪 -
大協シャトービル
大阪市淀川区西中島1
御堂筋線「西中島南方」徒歩3分
34.0坪 -
川久センタービル
大阪市淀川区西中島2
御堂筋線「西中島南方」徒歩8分
30.06坪 -
新大阪第2ドイビル
大阪市淀川区西中島2
御堂筋線「西中島南方」徒歩2分
38.03坪 -
NLC西中島3丁目店舗(A)
大阪市淀川区西中島3
御堂筋線「西中島南方」徒歩4分
30.21坪 -
三好第2ビル
大阪市淀川区西中島3
御堂筋線「西中島南方」徒歩1分
36.67坪 -
アストロ新大阪第3ビル
大阪市淀川区西中島4
御堂筋線「西中島南方」徒歩3分
36.95坪 -
エス・ティ・エスビル
大阪市淀川区西中島5
御堂筋線「西中島南方」徒歩3分
36.77坪





















