つるや第2ビル 5階-No.46403
つるや第2ビル 基本情報
| 種別 | 店舗・事務所(物件番号:46403) |
|---|---|
| 物件名 | つるや第2ビル
土日祝日もビルオープンです。ワンフロア事務所・店舗 |
| 住所 | 大阪市中央区南本町3-4-15 |
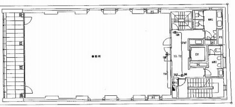
| 所在階 | 5階部分号室 |
| 契約面積 | 50.3 坪・ 166.29 ㎡ |
| 賃料 | 総額
503,000 円 (税抜)・坪単価
10,000 円/坪 (税抜) 総額 553,300 円(税含む) |
| 共益費 | 総額 150,900 円 (税抜)・坪単価 3,000 円/坪 (税抜) 総額 165,990 円 (税含む) |
| 月額合計 | 総額 653,900 円(税抜)・坪単価 13,000 円(税抜) 総額 719,290 円 (税含む) |
| 敷金 | 12ヶ月 |
| 解約引 | 20% |
| 最寄駅 |
御堂筋線 『
本町 』
1 分
中央線 『 本町 』 2 分 堺筋線 『 堺筋本町 』 5 分 |
| 構造 | 鉄筋コンクリート造 8階建 /地下 1 階 |
| 築年数 | 1991/10 【新耐震基準】 |
| 設備
|
|
| エレベーター | 1基 |
営業マンの一言 |
|

※取引態様:仲介
※上記、金額は募集条件です。 条件交渉など、詳細についてはお問合せ下さい。
※広告作成中に契約済みの場合はご容赦下さい。
※図面等現況が相違する場合は現況優先にてご容赦下さい。
つるや第2ビルの所在地周辺
物件を再検索する
つるや第2ビル 近隣のよく似た坪数の貸事務所
-
SYNASIA大阪本町ビル(FDS大阪本町)
大阪市中央区本町3
御堂筋線「本町」徒歩1分
57.39坪 -
船場オーセンビル
大阪市中央区安土町3
御堂筋線「本町」徒歩1分
52.74坪 -
御堂筋MTRビル
大阪市中央区淡路町3
御堂筋線「本町」徒歩3分
50.72坪 -
本町パートナーズビル
大阪市中央区淡路町3
御堂筋線「本町」徒歩6分
51.39坪 -
おおきに御堂筋瓦町ビル
大阪市中央区瓦町4
御堂筋線「本町」徒歩3分
57.52坪 -
日繊商工ビル
大阪市中央区北久宝寺町2
御堂筋線「本町」徒歩8分
59.1坪 -
本町南ガーデンシティ
大阪市中央区北久宝寺町3
御堂筋線「本町」徒歩2分
55.15坪 -
五味ビル
大阪市中央区久太郎町2
御堂筋線「本町」徒歩4分
53.88坪 -
本町武田ビル
大阪市中央区久太郎町3
御堂筋線「本町」徒歩2分
58.65坪 -
谷口悦第2ビル
大阪市中央区久太郎町3
御堂筋線「本町」徒歩1分
59.15坪




中阪 浩之












