T・M・B道修町ビル 2階-No.46525
T・M・B道修町ビル 基本情報
| 種別 | 貸事務所(物件番号:46525) |
|---|---|
| 物件名 | T・M・B道修町ビル |
| 住所 | 大阪市中央区道修町2-1-10 |
| 所在階 | 2階部分号室 |
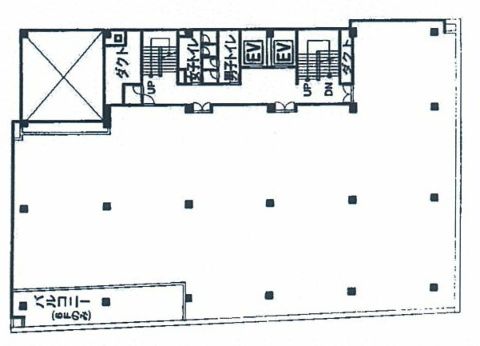
| 契約面積 | 58.63 坪・ 193.82 ㎡ |
| 最寄駅 |
堺筋線 『
北浜 』
3 分
御堂筋線 『 淀屋橋 』 7 分 京阪本線 『 北浜 』 3 分 |
| 構造 | 鉄骨鉄筋コンクリート造 7階建 /地下 2 階 |
| 築年数 | 1966/2 (リニューアル: 平成13年 ) |
| 設備
|
|
| エレベーター | 2基 |
営業マンの一言 ビジネスエリア中心 オススメオフィス北浜駅・淀屋橋駅利用可能 道修町の大型ビル。設備充実 |
|
| 備考 | 貸し会議室 |

※取引態様:仲介
※上記、金額は募集条件です。 条件交渉など、詳細についてはお問合せ下さい。
※広告作成中に契約済みの場合はご容赦下さい。
※図面等現況が相違する場合は現況優先にてご容赦下さい。
T・M・B道修町ビルの所在地周辺
ストリートビューを表示▼
物件を再検索する
T・M・B道修町ビル 関連物件
T・M・B道修町ビル 近隣のよく似た坪数の貸事務所
-
入商八木ビル
大阪市中央区北浜2
堺筋線「北浜」徒歩1分
54.15坪 -
北浜平和ビル
大阪市中央区北浜2
堺筋線「北浜」徒歩1分
50.6坪 -
CH ビル
大阪市中央区高麗橋2
堺筋線「北浜」徒歩2分
51.33坪 -
道修町後藤ビル
大阪市中央区道修町2
堺筋線「北浜」徒歩3分
56.59坪 -
メロディ-ハイム平野町
大阪市中央区平野町1
堺筋線「北浜」徒歩4分
53.9坪 -
KCI平野町ビル(旧:平野町山内)
大阪市中央区平野町2
堺筋線「北浜」徒歩5分
57.46坪





中阪 浩之








