なんば 貸店舗 6階-No.47038
なんば 貸店舗 基本情報
| 種別 | 貸店舗(物件番号:47038) |
|---|---|
| 物件名 | なんば 貸店舗 |
| 住所 | 大阪市中央区心斎橋筋2 |
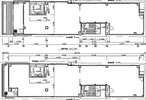
| 所在階 | 6階部分号室 |
| 契約面積 | 45.03 坪・ 148.86 ㎡ |
| 最寄駅 |
千日前線 『
なんば 』
5 分
御堂筋線 『 心斎橋 』 7 分 長堀鶴見緑地線 『 心斎橋 』 7 分 |
| 構造 | 鉄骨造 6階建 |
| 築年数 | 2020/9 【新耐震基準】 |
| 設備
|
|
| エレベーター | 1基 |
営業マンの一言 道頓堀 宗右衛門町に2020年9月竣工!多くの人で賑わう物販・飲食店を中心としたテナントビル■エステ・美容室・クリニック向き■飲食店舗向き■物販向き■各種教室向き |
|

※取引態様:仲介
※上記、金額は募集条件です。 条件交渉など、詳細についてはお問合せ下さい。
※広告作成中に契約済みの場合はご容赦下さい。
※図面等現況が相違する場合は現況優先にてご容赦下さい。
なんば 貸店舗の所在地周辺
ストリートビューを表示▼





中阪 浩之


