Rnビル 4階-No.48418
Rnビル 基本情報
| 種別 | 貸事務所(物件番号:48418) |
|---|---|
| 物件名 | Rnビル
2階ラウンジスペース利用可 |
| 住所 | 大阪市淀川区西中島6-7-9 |
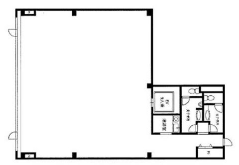
| 所在階 | 4階部分フロア号室 |
| 契約面積 | 49.36 坪・ 163.18 ㎡ |
| 賃料 | 総額
691,040 円 (税抜)・坪単価
14,000 円/坪 (税抜) 総額 760,144 円(税含む) |
| 共益費 | 総額 賃料に含む (税抜)・坪単価 賃料に含む (税抜) 総額 賃料に含む (税含む) |
| 月額合計 | 総額 691,040 円(税抜)・坪単価 14,000 円(税抜) 総額 760,144 円 (税含む) |
| 敷金 | 6,910,400 円 |
| 解約引 | スライド |
| 最寄駅 |
御堂筋線 『
西中島南方 』
4 分
御堂筋線 『 新大阪 』 9 分 |
| 構造 | 鉄骨造 7階建 |
| 築年数 | 2004/9 【新耐震基準】 |
| 設備
|
|
| エレベーター | 1基 |
営業マンの一言 大阪メトロ御堂筋線西中島南方駅徒歩4分 阪急京都本線南方駅徒歩5分 2004年竣工新耐震基準建物 大通りに面した視認性の高い賃貸テナントビル |
|

※取引態様:仲介
※上記、金額は募集条件です。 条件交渉など、詳細についてはお問合せ下さい。
※広告作成中に契約済みの場合はご容赦下さい。
※図面等現況が相違する場合は現況優先にてご容赦下さい。
Rnビルの所在地周辺
物件を再検索する
Rnビル 近隣のよく似た坪数の貸事務所
-
KC新大阪ビル
大阪市淀川区木川東3
御堂筋線「西中島南方」徒歩9分
40.84坪 -
AXIS新大阪ビル-1(アクシス新大阪)
大阪市淀川区西中島1
御堂筋線「西中島南方」徒歩1分
48.48坪 -
川久センタービル
大阪市淀川区西中島2
御堂筋線「西中島南方」徒歩8分
49.72坪 -
新大阪第2ドイビル
大阪市淀川区西中島2
御堂筋線「西中島南方」徒歩2分
44.59坪 -
第3SPビル
大阪市淀川区西中島3
御堂筋線「西中島南方」徒歩3分
40.5坪 -
新大阪中里第2ビル
大阪市淀川区西中島3
御堂筋線「西中島南方」徒歩2分
47.0坪 -
NLC新大阪パワービル
大阪市淀川区西中島4
御堂筋線「西中島南方」徒歩1分
43.8坪 -
TAIYOセンタービル
大阪市淀川区西中島4
御堂筋線「西中島南方」徒歩4分
41.58坪 -
NLC新大阪11号館
大阪市淀川区西中島6
御堂筋線「西中島南方」徒歩6分
43.63坪





堀中 忠久











