第一住建福島駅前ビル 3階-No.48827
営業スタッフ紹介
中阪 浩之ナカサカ ヒロユキ
第一住建福島駅前ビル 基本情報
| 種別 | 事務所・店舗(物件番号:48827) |
|---|---|
| 物件名 | 第一住建福島駅前ビル |
| 住所 | 大阪市福島区福島7-3-18 |
| 所在階 | 3階部分フロア号室 |
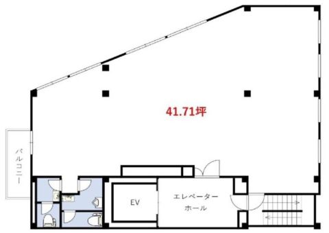
| 契約面積 | 41.71 坪・ 137.89 ㎡ |
| 最寄駅 |
環状線 『
福島 』
2 分
東西線 『 新福島 』 3 分 四ツ橋線 『 西梅田 』 10 分 |
| 構造 | 鉄骨造 6階建 |
| 築年数 | 2020/3 【新耐震基準】 |
| 設備
|
|
| エレベーター | 1基 17人乗 |
営業マンの一言 隠れ家的なオフィスビル必見です。大阪環状線 福島駅徒歩2分 東西線・大阪メトロ四ツ橋線 西梅田駅利用可能 ワンフロアワンテナント賃貸物件 |
|

※取引態様:仲介
※上記、金額は募集条件です。 条件交渉など、詳細についてはお問合せ下さい。
※広告作成中に契約済みの場合はご容赦下さい。
※図面等現況が相違する場合は現況優先にてご容赦下さい。
第一住建福島駅前ビルの所在地周辺
ストリートビューを表示▼


















