明治安田生命十三ビル 2階-No.48830
明治安田生命十三ビル 基本情報
| 種別 | 貸事務所(物件番号:48830) |
|---|---|
| 物件名 | 明治安田生命十三ビル
・阪急十三駅から梅田、京都、神戸、宝塚方面への アクセス至便。 |
| 住所 | 大阪市淀川区新北野1-2-3 |
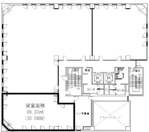
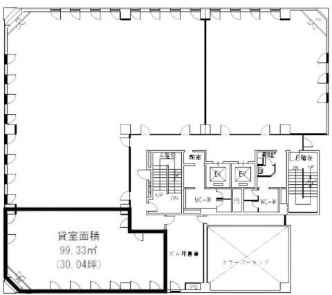
| 所在階 | 2階部分号室 その他、貸室 |
| 契約面積 | 83.92 坪・ 277.43 ㎡ |
| 賃料 | お電話・メールにてお問合下さい。 |
| 共益費 | お電話・メールにてお問合下さい。 |
| 月額合計 | お電話・メールにてお問合下さい。 |
| 敷金 | お電話・メールにてお問合下さい。 |
| 最寄駅 | 阪急線 『 十三 』 3 分 |
| 構造 | 鉄筋コンクリート造 9階建 |
| 築年数 | 1987/3 【新耐震基準】 |
| 設備
|
|
| エレベーター | 2基 |
営業マンの一言 阪急線 十三駅徒歩3分の好立地 大通りに面した視認性の高い大型賃貸テナントビル |
|

※取引態様:仲介
※上記、金額は募集条件です。 条件交渉など、詳細についてはお問合せ下さい。
※広告作成中に契約済みの場合はご容赦下さい。
※図面等現況が相違する場合は現況優先にてご容赦下さい。
明治安田生命十三ビルの所在地周辺
ストリートビューを表示▼





丹羽 美智子



