毎日インテシオ 2階-No.49747
 堀中 忠久
堀中 忠久ホリナカ タダヒサ
毎日インテシオの豆知識
「毎日インテシオ」がある大阪ガーデンシティは、文化と情報が交流・集積する複合都市大阪・梅田。
未来を創造し発信するさまざまな企業とともに、明日のビジネスをリードします。
「毎日インテシオ」へのアクセスは、JR「大阪駅」、地下鉄・阪急・阪神の各「梅田駅」と地下道で直結しています。
関西国際空港・大阪国際空港へはリムジンバスで直行できます。
大阪市内はもちろん、各都市へのアクセスの良さが、スピードを増す新時代のビジネスを強力にサポートします。
貸室内は無柱で広々としたオフィス空間、レイアウトも自在にデザインできます。
OAフロアでありながら、天井の高さは2.8mを確保。
採光性に優れた快適なオフィス環境です。
高層階・低層階それぞれへ、専用エレベーターで機能的かつスムーズに移動可能。
非接触型ICカードによる入退室をはじめ高度なセキュリティシステムで安心・安全の管理体制です。
また、隣接する「毎日新聞」ビルとの連動もされており、オフィスでの日常をより充実させる施設が整っています。
毎日インテシオ 基本情報
| 種別 | 貸事務所(物件番号:49747) | 
|---|---|
| 物件名 | 毎日インテシオ | 
| 住所 | 大阪市北区梅田3-4-5 | 
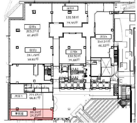
| 所在階 | 2階部分号室 | 
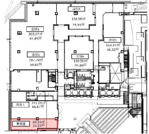
| 契約面積 | 24.25 坪・ 80.17 ㎡ | 
| 賃料 | 総額
400,125 円 (税抜)・坪単価
16,500 円/坪 (税抜) 総額 440,138 円(税含む) | 
| 共益費 | 総額 109,125 円 (税抜)・坪単価 4,500 円/坪 (税抜) 総額 120,038 円 (税含む) | 
| 月額合計 | 総額 509,250 円(税抜)・坪単価 21,000 円(税抜) 総額 560,175 円 (税含む) | 
| 保証金 | 12ヶ月 | 
| 解約引 | 無し | 
| 費用備考 | その他諸費用あり | 
|  | |
| 最寄駅 | 四ツ橋線                  『
                  西梅田                  』
                  10                  分 環状線 『 大阪 』 5 分 御堂筋線 『 梅田 』 10 分 | 
| 構造 | 鉄骨鉄筋コンクリート造 21階建 /地下 5 階 | 
| 築年数 | 2007/7 【新耐震基準】 | 
| 設備 | |
| エレベーター | 8基 | 
| 営業マンの一言西梅田エリアの築浅、ハイグレードオフィス 大阪メトロ四ツ橋線 西梅田駅徒歩圏内 ダイヤモンドエリアの築浅、ハイグレードオフィス、JR「大阪」駅、各線「梅田」駅より地下道にて直結 1フロア302坪の大型賃貸オフィスビル | |
| 備考 | 駅直結ビル/貸し会議室/リフレッシュルーム/日祝、来店可能サービス型オフィス | 

※取引態様:仲介
            ※上記、金額は募集条件です。 条件交渉など、詳細についてはお問合せ下さい。
            ※広告作成中に契約済みの場合はご容赦下さい。
            ※図面等現況が相違する場合は現況優先にてご容赦下さい。
毎日インテシオの所在地周辺
入居テナント
物件を再検索する
毎日インテシオ 近隣のよく似た坪数の貸事務所
- 
                    西梅田上島ビル大阪市北区梅田2 
 四ツ橋線「西梅田」徒歩1分
 20.32坪
- 
                    桜橋第一ビル大阪市北区梅田2 
 四ツ橋線「西梅田」徒歩4分
 20.96坪
- 
                    マルイト西梅田ビル大阪市北区梅田3 
 四ツ橋線「西梅田」徒歩5分
 23.2坪
- 
                    毎日新聞ビル大阪市北区梅田3 
 四ツ橋線「西梅田」徒歩4分
 23.35坪
- 
                    京富ビル大阪市北区曾根崎新地1 
 四ツ橋線「西梅田」徒歩1分
 21.38坪
- 
                    若杉大阪駅前ビル大阪市北区曾根崎新地2 
 四ツ橋線「西梅田」徒歩1分
 24.8坪
- 
                    近鉄堂島ビル大阪市北区堂島2 
 四ツ橋線「西梅田」徒歩1分
 23.3坪
- 
                    堂北ビルディング大阪市北区堂島2 
 四ツ橋線「西梅田」徒歩2分
 22.01坪
- 
                    堂島セントラルビル大阪市北区堂島浜1 
 四ツ橋線「西梅田」徒歩6分
 22.0坪

 お問合せリスト・物件リクエスト
 お問合せリスト・物件リクエスト 電話でお問合せ
 電話でお問合せ



 
                  
                


 
                                   








































