オリックス久太郎町ビル(ORIX久太郎町ビル) 4階-No.49764
 
                                    中阪 浩之
中阪 浩之ナカサカ ヒロユキ
オリックス久太郎町ビル(ORIX久太郎町ビル)の豆知識
「オリックス久太郎町ビル(ORIX久太郎町)」は、大阪市中央区久太郎町3丁目にございます賃貸事務所。
商都・大阪の中心地・船場エリアに位置する、スタイリッシュで美しい外観の10階建てオフィスビル。
屋上には緑化庭園、キーレス血流認識装置のセキュリティ、24時間対応の温湿度管理に、空気清浄と、ハイスペックな最新ビル設備で、入居者様の快適なオフィスワークをサポートしています。
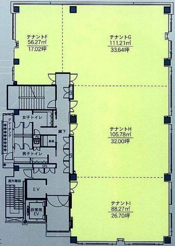
貸室基準階面積は約110坪。
約30坪の広さから対応が可能なフレキシブルな賃貸オフィスです。
大阪市営地下鉄御堂筋線・中央線の「本町駅」より徒歩3分。
堺筋線の「堺筋本町駅」より徒歩4分と、交通アクセスも抜群の大阪ビジネス拠点。
心斎橋商店街や船場センタービル街も近く、活気あるロケーションです。
オリックス久太郎町ビル(ORIX久太郎町ビル) 基本情報
| 種別 | 貸事務所(物件番号:49764) | 
|---|---|
| 物件名 | オリックス久太郎町ビル(ORIX久太郎町ビル) | 
| 住所 | 大阪市中央区久太郎町3-3-9 | 
| 所在階 | 4階部分号室 その他、貸室 | 
| 契約面積 | 26.88 坪・ 88.86 ㎡ | 
| 賃料 | お電話・メールにてお問合下さい。 | 
| 共益費 | お電話・メールにてお問合下さい。 | 
| 月額合計 | お電話・メールにてお問合下さい。 | 
| 敷金 | お電話・メールにてお問合下さい。 | 
|  | |
| 最寄駅 | 御堂筋線                  『
                  本町                  』
                  3                  分 中央線 『 本町 』 3 分 堺筋線 『 堺筋本町 』 4 分 | 
| 構造 | 鉄筋コンクリート造 10階建 /地下 1 階 | 
| 築年数 | 2008/1 【新耐震基準】 | 
| 設備 | |
| エレベーター | 3基 | 
| 営業マンの一言大阪本町のハイスペックな賃貸事務所ビルです。 2008年竣工、スタイリッシュで大変綺麗なハイグレード賃貸オフィスビル | |
| 備考 | オートロック | 

※取引態様:仲介
            ※上記、金額は募集条件です。 条件交渉など、詳細についてはお問合せ下さい。
            ※広告作成中に契約済みの場合はご容赦下さい。
            ※図面等現況が相違する場合は現況優先にてご容赦下さい。
オリックス久太郎町ビル(ORIX久太郎町ビル)の所在地周辺
オリックス久太郎町ビル(ORIX久太郎町ビル) その他の部屋情報
入居テナント
物件を再検索する
オリックス久太郎町ビル(ORIX久太郎町ビル) 関連物件
オリックス久太郎町ビル(ORIX久太郎町ビル) 近隣のよく似た坪数の貸事務所
- 
                    本町吉田ビル大阪市西区阿波座1 
 御堂筋線「本町」徒歩2分
 25.47坪
- 
                    IENTO本町ビル(イエント本町)大阪市中央区本町4 
 御堂筋線「本町」徒歩1分
 29.29坪
- 
                    本町ガーデンシティテラス大阪市中央区安土町3 
 御堂筋線「本町」徒歩1分
 28.07坪
- 
                    中外ビル大阪市中央区安土町3 
 御堂筋線「本町」徒歩1分
 26.4坪
- 
                    創建御堂筋ビル大阪市中央区淡路町3 
 御堂筋線「本町」徒歩3分
 28.43坪
- 
                    瓦町スクエアビル大阪市中央区瓦町2 
 御堂筋線「本町」徒歩6分
 25.35坪
- 
                    おおきにKOKODESU瓦町四丁目大阪市中央区瓦町4 
 御堂筋線「本町」徒歩4分
 28.13坪
- 
                    南星瓦町ビル大阪市中央区瓦町4 
 御堂筋線「本町」徒歩4分
 27.56坪
- 
                    本町コラボビル大阪市中央区北久宝寺町4 
 御堂筋線「本町」徒歩3分
 29.62坪
- 
                    南本町エクセルビル大阪市中央区久太郎町3 
 御堂筋線「本町」徒歩3分
 26.94坪

 お問合せリスト・物件リクエスト
 お問合せリスト・物件リクエスト 電話でお問合せ
 電話でお問合せ



 
                  
                

















































