アドバンスビル本町(大松ビル) 7階-No.49924
中阪 浩之ナカサカ ヒロユキ
アドバンスビル本町(大松ビル)の豆知識
「大松ビル」は、大阪市中央区常盤町2丁目にございます、賃貸事務所ビル。
中央大通りと松屋町筋より、それぞれ一筋北東に入った場所に位置する、1990年築・9階建ての角ビル。
かっちりした印象の外観が、オフィスとしての威厳を醸し出してくれます。
大阪市営地下鉄・中央線・谷町線の「谷町四丁目駅」より徒歩4分。
中央線・堺筋線の「堺筋本町駅」からも徒歩5分。
3WAY・2駅の利用ができる、フットワークの良いビジネス拠点です。
エレベーター、個別空調、オートロック、男女別トイレと、ビルスペックも整った快適オフィス空間。
ワンフロア面積は約60坪ほどございますが、10~20坪の広さに分割していますので、3名様から10名様の企業様に最適です。
周辺には、大阪商工会議所や、マイドーム大阪、中央区役所があるビジネス街。
また、緑豊かな公園も多く存在し、ビジネスワークのリフレッシュに役立っています。
アドバンスビル本町(大松ビル) 基本情報
| 種別 | 事務所(物件番号:49924) |
|---|---|
| 物件名 | アドバンスビル本町(大松ビル) |
| 住所 | 大阪市中央区常盤町2-1-13 |
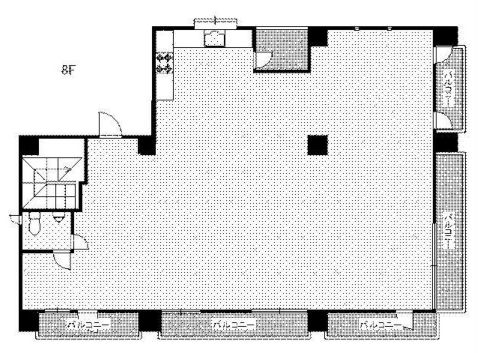
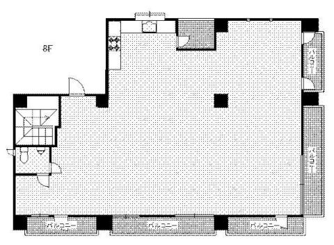
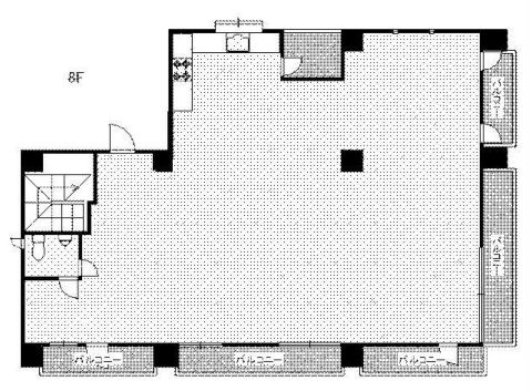
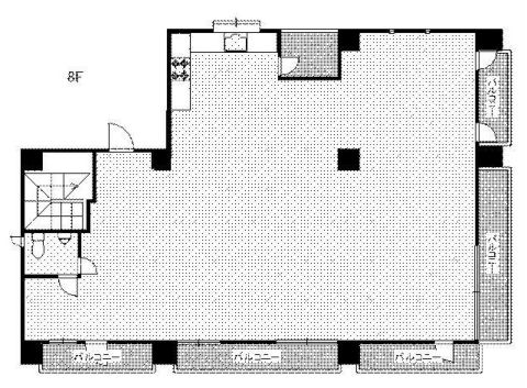
| 所在階 | 7階部分フロア号室 その他、貸室 |
| 契約面積 | 58.39 坪・ 193.03 ㎡ |
| 賃料 | 総額
605,000 円 (税抜)・坪単価
10,361 円/坪 (税抜) 総額 665,500 円(税含む) |
| 共益費 | 総額 賃料に含む (税抜)・坪単価 賃料に含む (税抜) 総額 賃料に含む (税含む) |
| 月額合計 | 総額 605,000 円(税抜)・坪単価 10,361 円(税抜) 総額 665,500 円 (税含む) |
| 敷金 | 2ヶ月 |
| 礼金 | 3ヶ月 |
| 費用備考 | 賃貸保証加入要 |
| 最寄駅 |
谷町線 『
谷町四丁目 』
4 分
中央線 『 谷町四丁目 』 4 分 堺筋線 『 堺筋本町 』 5 分 |
| 構造 | 鉄筋コンクリート造 9階建 |
| 築年数 | 1990/9 【新耐震基準】 |
| 設備
|
|
| エレベーター | 1基 |
営業マンの一言 谷四・堺筋本町駅・3線2駅が利用OKの賃貸事務所ビル。新耐震基準の物件で角ビルの為視認性が高く、管理の行き届いた清潔感溢れる雰囲気です。低コストかつ、1フロア1テナント仕様でお勧めな物件 |
|

※取引態様:仲介
※上記、金額は募集条件です。 条件交渉など、詳細についてはお問合せ下さい。
※広告作成中に契約済みの場合はご容赦下さい。
※図面等現況が相違する場合は現況優先にてご容赦下さい。
アドバンスビル本町(大松ビル)の所在地周辺
アドバンスビル本町(大松ビル) その他の部屋情報
物件を再検索する
アドバンスビル本町(大松ビル) 関連物件
アドバンスビル本町(大松ビル) 近隣のよく似た坪数の貸事務所
-
谷四スクエア
大阪市中央区内本町1
谷町線「谷町四丁目」徒歩1分
56.05坪 -
フェニックス内本町ビル
大阪市中央区内本町2
谷町線「谷町四丁目」徒歩3分
50.88坪 -
assess大手通ビル
大阪市中央区大手通2
谷町線「谷町四丁目」徒歩9分
50.9坪 -
船岡ビル
大阪市中央区常盤町1
谷町線「谷町四丁目」徒歩2分
60.0坪 -
リーガル大阪ビル
大阪市中央区徳井町2
谷町線「谷町四丁目」徒歩5分
51.06坪 -
タイムスビル
大阪市中央区南新町1
谷町線「谷町四丁目」徒歩3分
54.45坪


















