KITENA新大阪 8階-No.50432
営業スタッフ紹介
堀中 忠久ホリナカ タダヒサ
KITENA新大阪の豆知識
「新大阪丸ビル本館」は、大阪市東淀川区東中島1丁目にございます、賃貸事務所ビルです。
JRの「新大阪駅」より徒歩2分、大阪市営地下鉄御堂筋線の「新大阪駅」より徒歩5分の交通アクセス。
築後30年以上になりますが、鉄骨鉄筋コンクリート造り、角地に建つ10階建てビルは、どっしりした構えが特徴的。
エレベーター2基、セントラル空調、駐車場併設とビルスペックも充実。
何より、24時間ビル専用の常駐警備体制で、管理の良い、安心・快適なオフィススペースが確保されています。
1階部分は、店舗やショールーム向き、2階から上がオフィス仕様。
オフィス貸室は、使いやすい広さの約9坪~約20坪のお部屋が中心。
個人様から、5~6人の営業所にちょうど良い面積です。
新大阪は、新幹線の玄関口であり、また空港へのアクセスもよく、全国各地にフットワークの良いビジネス拠点として、人気の高いエリアです。
KITENA新大阪 基本情報
| 種別 | 貸事務所(物件番号:50432) |
|---|---|
| 物件名 | KITENA新大阪 |
| 住所 | 大阪市東淀川区東中島1-18-5 |
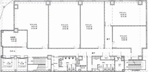
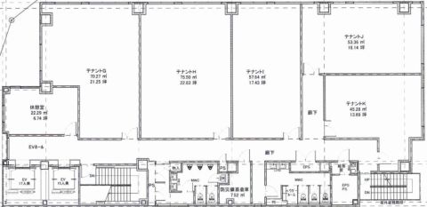
| 所在階 | 8階部分号室 その他、貸室 |
| 契約面積 | 26.8 坪・ 88.60 ㎡ |
| 賃料 | お電話・メールにてお問合下さい。 |
| 共益費 | お電話・メールにてお問合下さい。 |
| 月額合計 | お電話・メールにてお問合下さい。 |
| 敷金 | お電話・メールにてお問合下さい。 |
| 最寄駅 |
東海道本線 『
新大阪 』
2 分
御堂筋線 『 新大阪 』 5 分 |
| 構造 | 鉄骨鉄筋コンクリート造 9階建 |
| 築年数 | 2022/5 【新耐震基準】 |
| 設備
|
|
| エレベーター | 3基 |
営業マンの一言 |
|

※取引態様:仲介
※上記、金額は募集条件です。 条件交渉など、詳細についてはお問合せ下さい。
※広告作成中に契約済みの場合はご容赦下さい。
※図面等現況が相違する場合は現況優先にてご容赦下さい。
KITENA新大阪の所在地周辺
ストリートビューを表示▼









