ナンバ八千代ビル 5階-No.50585
営業スタッフ紹介
中阪 浩之ナカサカ ヒロユキ
ナンバ八千代ビルの豆知識
「難波八千代ビル(ナンバ八千代)」は、大阪市中央区難波2丁目にございます、賃貸事務所。
大阪市内を東西に貫く“千日前通り”に面した、ライトグレーのタイル貼り、11階建てオフィスビル。
管理人さん常駐に、機械警備完備と安心のセキュリティ。
共用部のリニューアルや日々の管理も申し分なく、快適なオフィススペースが確保されています。
貸室の広さは、個人様にピッタリの6坪タイプから20坪台のオフィスまで、使い勝手の良いビジネス拠点です。
大阪市営地下鉄御堂筋線・千日前線の「なんば駅」、JR線・近鉄線の「難波駅」から徒歩1分。
マルチアクセスが可能な好立地、大阪オフィスです。
ナンバ八千代ビル 基本情報
| 種別 | 貸事務所(物件番号:50585) |
|---|---|
| 物件名 | ナンバ八千代ビル |
| 住所 | 大阪市中央区難波2-3-11 |
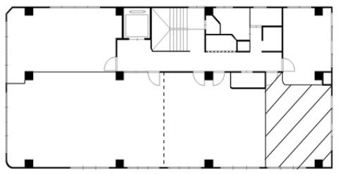
| 所在階 | 5階部分E号室 その他、貸室 |
| 契約面積 | 9.24 坪・ 30.55 ㎡ |
| 賃料 | 総額
相談 (税抜)・坪単価
相談 (税抜) 総額 (税含む) |
| 共益費 | 総額 36,036 円 (税抜)・坪単価 3,900 円/坪 (税抜) 総額 39,640 円 (税含む) |
| 月額合計 | 総額 相談(税抜)・坪単価 (税抜) 総額 (税含む) |
| 保証金 | 無し |
| 解約引 | スライド |
| 最寄駅 |
御堂筋線 『
なんば 』
2 分
四ツ橋線 『 なんば 』 5 分 千日前線 『 なんば 』 3 分 |
| 構造 | 鉄骨鉄筋コンクリート造 11階建 /地下 1 階 |
| 築年数 | 1974/6 |
| 設備
|
|
| エレベーター | 1基 |
営業マンの一言 大阪ナンバ管理の良い貸しオフィス大阪メトロ御堂筋線 なんば駅徒歩2分 JR線・南海線・近鉄線利用可能 千日前通りに面したグレードの良いコンパクト賃貸事務所です。 |
|

※取引態様:仲介
※上記、金額は募集条件です。 条件交渉など、詳細についてはお問合せ下さい。
※広告作成中に契約済みの場合はご容赦下さい。
※図面等現況が相違する場合は現況優先にてご容赦下さい。
ナンバ八千代ビルの所在地周辺
ストリートビューを表示▼
ナンバ八千代ビル その他の部屋情報
| 階 | 号室 | 坪数 | ㎡数 | 賃料 | 共益費 | 保証金 | |
|---|---|---|---|---|---|---|---|
| 5階 | F | 5.12坪 | 16.93㎡ | 相談 | 19,968 円 | 無し | ![]() |
| 7階 | C | 6.53坪 | 21.59㎡ | 相談 | 25,467 円 | 無し | ![]() |
| 11階 | 5.56坪 | 18.39㎡ | お電話・メールにて お問い合わせください。 | ![]() |
|||
















