マッセ難波ビル 3階-No.50591
マッセ難波ビル 基本情報
| 種別 | 貸事務所(物件番号:50591) |
|---|---|
| 物件名 | マッセ難波ビル |
| 住所 | 大阪市浪速区難波中1-9-10 |
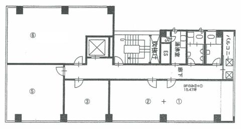
| 所在階 | 3階部分3号室 その他、貸室 |
| 契約面積 | 6.23 坪・ 20.60 ㎡ |
| 賃料 | 総額
78,000 円 (税抜)・坪単価
12,520 円/坪 (税抜) 総額 85,800 円(税含む) |
| 共益費 | 総額 18,000 円 (税抜)・坪単価 2,889 円/坪 (税抜) 総額 19,800 円 (税含む) |
| 月額合計 | 総額 96,000 円(税抜)・坪単価 15,409 円(税抜) 総額 105,600 円 (税含む) |
| 敷金 | 6ヶ月 |
| 解約引 | 1ヶ月 |
| 最寄駅 |
御堂筋線 『
なんば 』
2 分
四ツ橋線 『 なんば 』 2 分 |
| 構造 | S(鉄骨)造 10階建 |
| 築年数 | 1988/11 【新耐震基準】 |
| 設備
|
|
| エレベーター | 1基 |
営業マンの一言 |
|

※取引態様:仲介
※上記、金額は募集条件です。 条件交渉など、詳細についてはお問合せ下さい。
※広告作成中に契約済みの場合はご容赦下さい。
※図面等現況が相違する場合は現況優先にてご容赦下さい。
マッセ難波ビルの所在地周辺
ストリートビューを表示▼











中阪 浩之










