りそな・アルテ桜川ビル 2階-No.50596
りそな・アルテ桜川ビル 基本情報
| 種別 | 貸事務所(物件番号:50596) |
|---|---|
| 物件名 | りそな・アルテ桜川ビル |
| 住所 | 大阪市浪速区幸町2-7-3 |
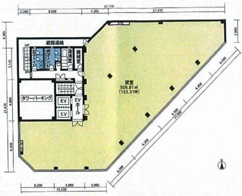
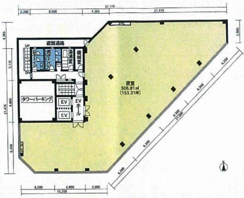
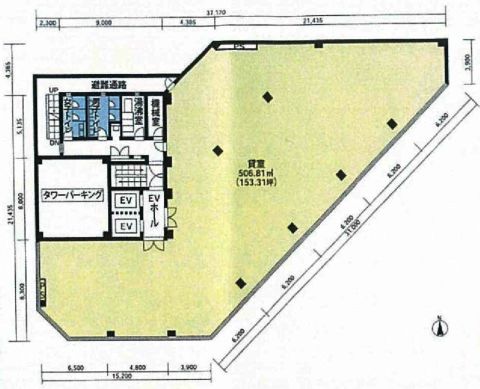
| 所在階 | 2階部分2号室 |
| 契約面積 | 32.17 坪・ 106.35 ㎡ |
| 賃料 | お電話・メールにてお問合下さい。 |
| 共益費 | お電話・メールにてお問合下さい。 |
| 月額合計 | お電話・メールにてお問合下さい。 |
| 保証金 | お電話・メールにてお問合下さい。 |
| 費用備考 | 賃貸保証加入要 |
| 最寄駅 |
千日前線 『
桜川 』
1 分
四ツ橋線 『 なんば 』 5 分 千日前線 『 桜川 』 1 分 |
| 構造 | 鉄骨鉄筋コンクリート造 7階建 |
| 築年数 | 1986/11 【新耐震基準】 |
| 設備
|
|
| エレベーター | 2基 |
営業マンの一言 幹線道路面す角ビル・採光良! |
|

※取引態様:仲介
※上記、金額は募集条件です。 条件交渉など、詳細についてはお問合せ下さい。
※広告作成中に契約済みの場合はご容赦下さい。
※図面等現況が相違する場合は現況優先にてご容赦下さい。
りそな・アルテ桜川ビルの所在地周辺
ストリートビューを表示▼















丹羽 美智子


