住友生命新大阪北ビル 2階-No.50911
住友生命新大阪北ビル 基本情報
| 種別 | 貸事務所(物件番号:50911) |
|---|---|
| 物件名 | 住友生命新大阪北ビル |
| 住所 | 大阪市淀川区宮原4-1-14 |
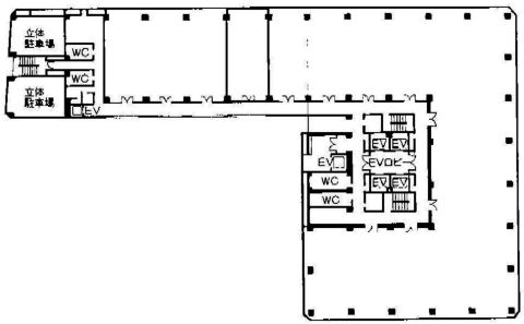
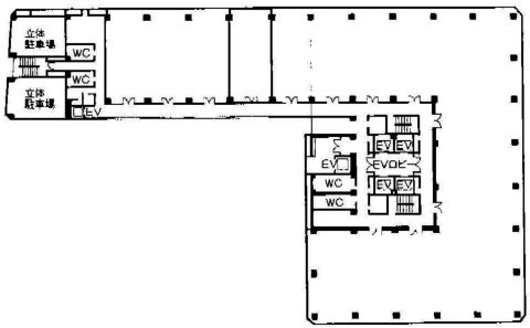
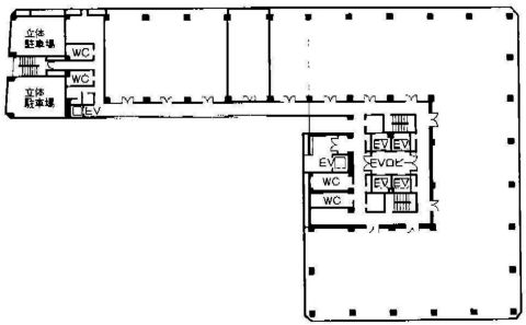
| 所在階 | 2階部分号室 |
| 契約面積 | 123.22 坪・ 407.34 ㎡ |
| 賃料 | お電話・メールにてお問合下さい。 |
| 共益費 | お電話・メールにてお問合下さい。 |
| 月額合計 | お電話・メールにてお問合下さい。 |
| 敷金 | お電話・メールにてお問合下さい。 |
| 最寄駅 |
御堂筋線 『
新大阪 』
4 分
東海道本線 『 新大阪 』 7 分 |
| 構造 | 鉄骨鉄筋コンクリート造 13階建 /地下 1 階 |
| 築年数 | 1986/6 【新耐震基準】 |
| 設備
|
|
| エレベーター | 6基 |
営業マンの一言 新大阪駅徒歩至近の大型オフィス新大阪のランドマークオフィスの一角に建つ設備、管理充実のオフィスビルです。 |
|

※取引態様:仲介
※上記、金額は募集条件です。 条件交渉など、詳細についてはお問合せ下さい。
※広告作成中に契約済みの場合はご容赦下さい。
※図面等現況が相違する場合は現況優先にてご容赦下さい。
住友生命新大阪北ビルの所在地周辺
ストリートビューを表示▼






中阪 浩之









