山本ビル 3階-No.50984
山本ビル 基本情報
| 種別 | 貸事務所(物件番号:50984) |
|---|---|
| 物件名 | 山本ビル |
| 住所 | 吹田市垂水町3-4-27 |
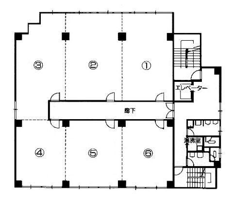
| 所在階 | 3階部分3号室 その他、貸室 |
| 契約面積 | 16.0 坪・ 52.90 ㎡ |
| 賃料 | 総額
80,000 円 (税抜)・坪単価
5,000 円/坪 (税抜) 総額 88,000 円(税含む) |
| 共益費 | 総額 40,000 円 (税抜)・坪単価 2,500 円/坪 (税抜) 総額 44,000 円 (税含む) |
| 月額合計 | 総額 120,000 円(税抜)・坪単価 7,500 円(税抜) 総額 132,000 円 (税含む) |
| 敷金 | 960,000 円 |
| 解約引 | 5年未満30%引き・10年未満20%引き・15年未満10%引き・15年以上、全額返金 |
| 最寄駅 | 御堂筋線 『 江坂 』 7 分 |
| 構造 | 鉄骨造 5階建 |
| 築年数 | 1987/10 【新耐震基準】 |
| 設備
|
|
| エレベーター | 1基 |
営業マンの一言 |
|

※取引態様:仲介
※上記、金額は募集条件です。 条件交渉など、詳細についてはお問合せ下さい。
※広告作成中に契約済みの場合はご容赦下さい。
※図面等現況が相違する場合は現況優先にてご容赦下さい。
山本ビルの所在地周辺
ストリートビューを表示▼
山本ビル その他の部屋情報
物件を再検索する
山本ビル 関連物件
山本ビル 近隣のよく似た坪数の貸事務所
-
西谷東急ビル
吹田市江の木町
御堂筋線「江坂」徒歩1分
16.44坪 -
江坂A・Iビル
吹田市垂水町3
御堂筋線「江坂」徒歩9分
16.7坪 -
21センチュリービル
吹田市豊津町
御堂筋線「江坂」徒歩2分
16.99坪 -
エクラート江坂ビル
吹田市豊津町
御堂筋線「江坂」徒歩1分
17.47坪 -
エサカ中央ビル
吹田市豊津町
御堂筋線「江坂」徒歩1分
18.88坪 -
第三暁ビル
吹田市豊津町
御堂筋線「江坂」徒歩3分
16.01坪 -
EDGE江坂(旧:ビーロット江坂)
吹田市豊津町
御堂筋線「江坂」徒歩1分
15.17坪






堀中 忠久










