堂島グランドビル 6階-No.52128
中阪 浩之ナカサカ ヒロユキ
堂島グランドビルの豆知識
「堂島グランドビル」は、大阪市北区堂島1丁目にございます、ハイグレード賃貸オフィスビル。
四ツ橋筋に面しており、堂島地下街にも隣接、地下鉄四つ橋線の「西梅田駅」より徒歩6分、JR東西線の「北新地駅」より徒歩5分、JRの「大阪駅」や各「梅田駅」へも徒歩圏内と抜群の交通アクセス。
どっしりした構えで安心感抜群のオフィス。
エレーベーター6基、管理人常駐、駐車場も80台超の大型ビル。
OA床も、65mmとゆとりのオフィス空間。
設備面は最新スペックが揃っています。
空調はセントラル空調+個別空調となっており、特に夏場はセントラル空調が21時までとなっていますので、残業等が予想される企業様にも安心です。
個別空調とは、各テナントで空調のオン・オフやお温度設定ができるシステム。
一方、セントラル空調は、ビル全体で一括して空調を運転・温度管理するシステムのことです。
この場合、自動運転時間内(通常8:00~18:00くらい)の空調費用は、共益費にふくまれているのが一般的です。
ですので、残業があまり多くないテナント様には、経済的といえます。
「堂島グランドビル」の場合、夏場21時までは、共益費の範囲内となりますので、安心してお仕事に専念できます。
堂島グランドビル その他の貸室情報
堂島グランドビル 基本情報
| 種別 | 貸事務所(物件番号:52128) |
|---|---|
| 物件名 | 堂島グランドビル
新耐震基準・EV6基・機械警備+有人警備 |
| 住所 | 大阪市北区堂島1-5-17 |
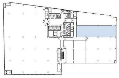
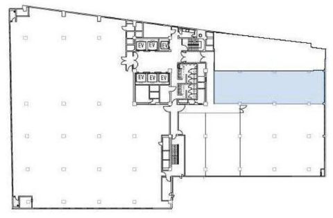
| 所在階 | 6階部分号室 |
| 契約面積 | 52.48 坪・ 173.49 ㎡ |
| 最寄駅 |
四ツ橋線 『
西梅田 』
3 分
東西線 『 北新地 』 2 分 御堂筋線 『 梅田 』 6 分 |
| 構造 | 鉄骨鉄筋コンクリート造 9階建 /地下 1 階 |
| 築年数 | 1979/6 |
| 設備
|
|
| エレベーター | 6基 20人乗 |
営業マンの一言 大阪・堂島エリアの大型賃貸オフィス。西梅田の大通りに面したハイグレードランドマークオフィスビル!管理人常駐で快適なビジネスライフ。 |
|

※取引態様:仲介
※上記、金額は募集条件です。 条件交渉など、詳細についてはお問合せ下さい。
※広告作成中に契約済みの場合はご容赦下さい。
※図面等現況が相違する場合は現況優先にてご容赦下さい。
堂島グランドビルの所在地周辺
入居テナント
物件を再検索する
堂島グランドビル 近隣のよく似た坪数の貸事務所
-
桜橋御幸ビル
大阪市北区梅田2
四ツ橋線「西梅田」徒歩1分
52.95坪 -
マルイト西梅田ビル
大阪市北区梅田3
四ツ橋線「西梅田」徒歩5分
53.94坪 -
グラングリーン大阪パークタワー
大阪市北区大深町
四ツ橋線「西梅田」徒歩1分
54.99坪 -
京富ビル
大阪市北区曾根崎新地1
四ツ橋線「西梅田」徒歩1分
51.68坪 -
曾根崎新地2丁目店舗ビル
大阪市北区曾根崎新地2
四ツ橋線「西梅田」徒歩4分
55.68坪 -
MF桜橋2ビル
大阪市北区曾根崎新地2
四ツ橋線「西梅田」徒歩3分
50.29坪 -
京阪堂島ビル
大阪市北区堂島2
四ツ橋線「西梅田」徒歩3分
52.07坪 -
シンコービルディング(堂島)
大阪市北区堂島2
四ツ橋線「西梅田」徒歩3分
52.81坪



























