三井住友銀行高麗橋ビル 3階-No.52557
 堀中 忠久
堀中 忠久ホリナカ タダヒサ
三井住友銀行高麗橋ビルの豆知識
「三井住友銀行高麗橋ビル」は、大阪市中央区伏見町2丁目にございます賃貸オフィスビルです。
地下鉄堺筋線の「北浜駅」6番出口スグ、京阪本線の「北浜駅」から徒歩3分、御堂筋線の「淀屋橋駅」より徒歩6分と抜群のロケーション。
堺筋に面しており、高さはありませんが重厚感あふれた新耐震の建物。
大阪の金融の中心地である“北浜エリア”にふさわしい外観と、テナント様も上場企業様はじめ多くの優良企業様が入居されており、ハイグレードなビルです。
向かいには、日本一の高さを誇るタワーマンション“ザ・キタハマタワー&プラザ”があります。
エレベーター3基、機械警備、個別空調、OAフロア、男女別シャワートイレ、機械式立体駐車場、駐輪場と充実した設備が整っています。
基準階面積は200坪ほどですが、40坪台の広さからの貸室も相談できます。
また、地下には飲食店街もあり、周辺にもさまざまな飲食店やカフェがございますので、日々のオフィスワークも快適に過ごせます。
三井住友銀行高麗橋ビル 基本情報
| 種別 | 貸事務所(物件番号:52557) | 
|---|---|
| 物件名 | 三井住友銀行高麗橋ビル | 
| 住所 | 大阪市中央区伏見町2-1-1 | 
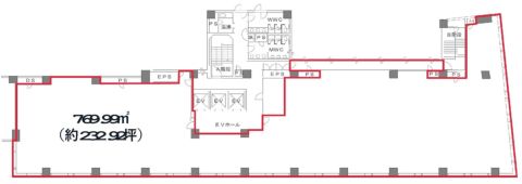
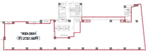
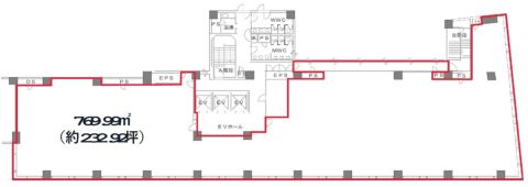
| 所在階 | 3階部分号室 その他、貸室 | 
| 契約面積 | 232.92 坪・ 769.99 ㎡ | 
| 賃料 | お電話・メールにてお問合下さい。 | 
| 共益費 | お電話・メールにてお問合下さい。 | 
| 月額合計 | お電話・メールにてお問合下さい。 | 
| 敷金 | お電話・メールにてお問合下さい。 | 
|  | |
| 最寄駅 | 堺筋線                  『
                  北浜                  』
                  1                  分 御堂筋線 『 淀屋橋 』 6 分 京阪本線 『 北浜 』 3 分 | 
| 構造 | 鉄骨鉄筋コンクリート造 9階建 /地下 2 階 | 
| 築年数 | 1994/3 【新耐震基準】 | 
| 設備 | |
| エレベーター | 3基 | 
| 営業マンの一言フリーレントキャンペーン中・詳細はお問合せくださいませ。 大阪メトロ堺筋線 北浜駅徒歩1分の好立地 京阪線・大阪メトロ御堂筋線も徒歩利用可能 ワンフロア230坪の大型ビルで大通り沿い 視認性の高いビルです エントランス・トイレリニューアル済みです。 | |

※取引態様:仲介
            ※上記、金額は募集条件です。 条件交渉など、詳細についてはお問合せ下さい。
            ※広告作成中に契約済みの場合はご容赦下さい。
            ※図面等現況が相違する場合は現況優先にてご容赦下さい。
三井住友銀行高麗橋ビルの所在地周辺
三井住友銀行高麗橋ビル その他の部屋情報
物件を再検索する
三井住友銀行高麗橋ビル 関連物件
三井住友銀行高麗橋ビル 近隣のよく似た坪数の貸事務所
- 
                    大阪JAビル大阪市北区西天満1 
 堺筋線「北浜」徒歩3分
 347.68坪
- 
                    北浜ネクスビルディング(NEXU BUILD)大阪市中央区北浜東 
 堺筋線「北浜」徒歩6分
 325.95坪
- 
                    平野町センチュリービル大阪市中央区平野町2 
 堺筋線「北浜」徒歩4分
 218.66坪

 お問合せリスト・物件リクエスト
 お問合せリスト・物件リクエスト 電話でお問合せ
 電話でお問合せ



 
                  
                


 
                                   


























