NREG御堂筋ビル 2階-No.52582
中阪 浩之ナカサカ ヒロユキ
NREG御堂筋ビルの豆知識
「NREG御堂筋ビル」は、大阪市中央区瓦町3丁目にございます、賃貸事務所ビル。
大阪のメインストリート“御堂筋”沿いに建つ、赤茶色のレンガ調タイル貼り、地下2階地上10階建てオフィス。
高さはありませんが、大型オフィスビルが建ち並ぶ御堂筋でも、一際存在感のあるビルです。
エレベーター5基、個別空調、有人&機械警備のセキュリティ、男女別シャワートイレ、駐車場、駐輪場、貸し会議室と、充実のビルスペック。
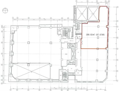
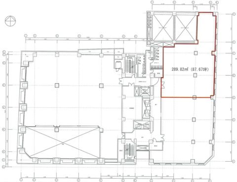
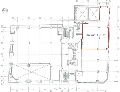
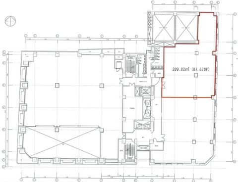
ワンフロアの面積は、約370坪。
OAフロアに天井高2.6mと、ゆとりのオフィススペースが、確保されています。
共用部をはさんで、約280坪と約95坪の貸室に分かれており、さらに約40坪~のお部屋にも分割が可能。
特に御堂筋側の貸室は、眺望も良く快適なワークスペースです。
大阪市営地下鉄・御堂筋線の「本町駅」1番出入口から徒歩2分。
「淀屋橋駅」からも徒歩5分、他にも、京阪本線や中央線の利用が可能なマルチな交通アクセスです。
NREG御堂筋ビル 基本情報
| 種別 | 事務所(物件番号:52582) |
|---|---|
| 物件名 | NREG御堂筋ビル
残り1室・条件お問い合わせください。 |
| 住所 | 大阪市中央区瓦町3-5-7 |
| 所在階 | 2階部分B号室 その他、貸室 |
| 契約面積 | 87.67 坪・ 289.82 ㎡ |
| 賃料 | 総額
1,490,390 円 (税抜)・坪単価
17,000 円/坪 (税抜) 総額 1,639,429 円(税含む) |
| 共益費 | 総額 賃料に含む (税抜)・坪単価 賃料に含む (税抜) 総額 賃料に含む (税含む) |
| 月額合計 | 総額 1,490,390 円(税抜)・坪単価 17,000 円(税抜) 総額 1,639,429 円 (税含む) |
| 敷金 | 12ヶ月 |
| 解約引 | 無し |
| 最寄駅 |
御堂筋線 『
本町 』
2 分
御堂筋線 『 淀屋橋 』 5 分 四ツ橋線 『 本町 』 7 分 |
| 構造 | 鉄骨鉄筋コンクリート造 10階建 /地下 2 階 |
| 築年数 | 1974/4 (リニューアル: 済 ) |
| 設備
|
|
| エレベーター | 5基 20人乗 |
営業マンの一言 大阪・御堂筋面したレンガタイルの賃貸オフィスビル大阪メトロ御堂筋線 本町駅すぐ御堂筋に面した大型貸事務所ビル!立地グレード良好。設備も充実しています。 |
|
| 備考 | 貸し会議室 |

※取引態様:仲介
※上記、金額は募集条件です。 条件交渉など、詳細についてはお問合せ下さい。
※広告作成中に契約済みの場合はご容赦下さい。
※図面等現況が相違する場合は現況優先にてご容赦下さい。
NREG御堂筋ビルの所在地周辺
NREG御堂筋ビル その他の部屋情報
| 階 | 号室 | 坪数 | ㎡数 | 賃料 | 共益費 | 敷金 | |
|---|---|---|---|---|---|---|---|
| 4階 | 79.2坪 | 261.82㎡ | お電話・メールにて お問い合わせください。 | ![]() |
|||
| 4階 | B | 79.21坪 | 261.86㎡ | 1,346,570 円 | 賃料に含む | 12ヶ月 | ![]() |
入居テナント
物件を再検索する
NREG御堂筋ビル 関連物件
NREG御堂筋ビル 近隣のよく似た坪数の貸事務所
-
SYNASIA大阪本町ビル(FDS大阪本町)
大阪市中央区本町3
御堂筋線「本町」徒歩1分
88.26坪 -
創建御堂筋ビル
大阪市中央区淡路町3
御堂筋線「本町」徒歩3分
82.57坪 -
グリーンビル
大阪市中央区瓦町3
御堂筋線「本町」徒歩4分
80.0坪 -
京阪神瓦町ビル
大阪市中央区瓦町4
御堂筋線「本町」徒歩2分
83.72坪 -
南星瓦町ビル
大阪市中央区瓦町4
御堂筋線「本町」徒歩4分
81.62坪 -
積水ハウス不動産南御堂ビル
大阪市中央区久太郎町4
御堂筋線「本町」徒歩1分
81.21坪 -
船場アルファビル
大阪市中央区備後町3
御堂筋線「本町」徒歩4分
86.5坪 -
メットライフ本町スクエアビル
大阪市中央区本町2
御堂筋線「本町」徒歩3分
89.96坪 -
野村不動産御堂筋本町ビル(旧:東芝大阪)
大阪市中央区本町4
御堂筋線「本町」徒歩0.5分
89.18坪 -
本町オルゴビル
大阪市中央区本町4
御堂筋線「本町」徒歩3分
89.86坪






































