ラポール四ツ橋BLD 3階-No.53299
中阪 浩之ナカサカ ヒロユキ
ラポール四ツ橋BLDの豆知識
「ラポール四ツ橋ビル」は、大阪市西区北堀江1丁目にございます、賃貸事務所。
基準階面積約80坪・7階建てのビル。
築40年以上たちますが、リノベーションもしており、スッキリした外観。
小規模ながら、基本的なビルスペックも整っており、マンション系や店舗系の多い堀江界隈では、オススメのオフィス。
1階奥に自転車置き場があるのも、テナント様にはメリット大です。
貸室は、最小7坪~20坪の使いやすい広さのお部屋が中心。
個人様はもちろん、少人数の企業様にもおすすめの賃貸物件。
大阪市営地下鉄・四つ橋線の「四ツ橋駅」6番出入口からは西へ直進・徒歩3分と、好アクセス。
「ラポール四ツ橋ビル」の前面道路は道幅も広く、周辺はおしゃれなお店が多く集まったロケーション。
北堀江・南堀江界隈は、大阪ミナミの繁華街心斎橋・ナンバに隣接し、クリエイティブな企業や比較的年齢の若い方に人気のエリアです。
ラポール四ツ橋BLD 基本情報
| 種別 | 貸事務所(物件番号:53299) |
|---|---|
| 物件名 | ラポール四ツ橋BLD |
| 住所 | 大阪市西区北堀江1-14-24 |
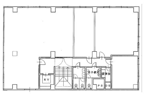
| 所在階 | 3階部分5号室 その他、貸室 |
| 契約面積 | 17.7 坪・ 58.52 ㎡ |
| 賃料 | 総額
127,500 円 (税抜)・坪単価
7,203 円/坪 (税抜) 総額 140,250 円(税含む) |
| 共益費 | 総額 42,500 円 (税抜)・坪単価 2,401 円/坪 (税抜) 総額 46,750 円 (税含む) |
| 月額合計 | 総額 170,000 円(税抜)・坪単価 9,605 円(税抜) 総額 187,000 円 (税含む) |
| 敷金 | 2ヶ月 |
| 礼金 | 2ヶ月 |
| 最寄駅 |
四ツ橋線 『
四ツ橋 』
3 分
御堂筋線 『 心斎橋 』 6 分 |
| 構造 | 鉄筋コンクリート造 7階建 /地下 1 階 |
| 築年数 | 1971/1 (リニューアル: 1999/03 ) |
| 設備
|
|
| エレベーター | 1基 |
営業マンの一言 堀江のオシャレな賃貸オフィス。四ツ橋駅、近くのお洒落な貸事務所!人気エリアの人気オフィスです。 |
|
| 備考 | オートロック |

※取引態様:仲介
※上記、金額は募集条件です。 条件交渉など、詳細についてはお問合せ下さい。
※広告作成中に契約済みの場合はご容赦下さい。
※図面等現況が相違する場合は現況優先にてご容赦下さい。
ラポール四ツ橋BLDの所在地周辺
ラポール四ツ橋BLD その他の部屋情報
| 階 | 号室 | 坪数 | ㎡数 | 賃料 | 共益費 | 敷金 | |
|---|---|---|---|---|---|---|---|
| 2階 | 1 | 24.0坪 | 79.34㎡ | 204,000 円 | 60,000 円 | 無し | ![]() |
| 3階 | 6 | 7.0坪 | 23.15㎡ | 52,500 円 | 17,500 円 | 2ヶ月 | ![]() |
| 5階 | 3 | 17.51坪 | 57.89㎡ | 131,325 円 | 43,775 円 | 2ヶ月 | ![]() |
物件を再検索する
ラポール四ツ橋BLD 関連物件
ラポール四ツ橋BLD 近隣のよく似た坪数の貸事務所
-
四ツ橋日生ビル別館
大阪市西区北堀江1
四ツ橋線「四ツ橋」徒歩1分
16.6坪 -
四ツ橋日生ビル本館
大阪市西区北堀江1
四ツ橋線「四ツ橋」徒歩1分
17.49坪 -
養田ビル四ツ橋館
大阪市西区北堀江1
四ツ橋線「四ツ橋」徒歩1分
20.0坪 -
おおきにサイタ・サイタビルヂング
大阪市西区北堀江1
四ツ橋線「四ツ橋」徒歩1分
16.12坪 -
北堀江コレット
大阪市西区北堀江1
四ツ橋線「四ツ橋」徒歩2分
16.69坪 -
RE-019
大阪市西区北堀江1
四ツ橋線「四ツ橋」徒歩1分
18.22坪 -
サンシステム堀江公園前
大阪市西区北堀江1
四ツ橋線「四ツ橋」徒歩3分
19.65坪 -
ローレルコート堀江公園
大阪市西区北堀江1
四ツ橋線「四ツ橋」徒歩3分
16.97坪 -
トムトムⅡ ビル
大阪市西区北堀江1
四ツ橋線「四ツ橋」徒歩3分
15.75坪 -
ノイメゾン堀江
大阪市西区北堀江1
四ツ橋線「四ツ橋」徒歩4分
15.33坪


















