谷町高橋ビル 2-3階-No.53405
谷町高橋ビル 基本情報
| 種別 | 貸事務所(物件番号:53405) |
|---|---|
| 物件名 | 谷町高橋ビル
メゾネットタイプ |
| 住所 | 大阪市中央区安堂寺町1-3-8 |
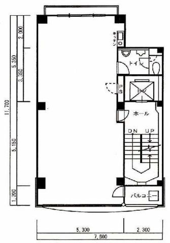
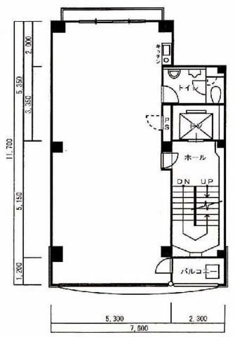
| 所在階 | 2-3階部分号室 その他、貸室 |
| 契約面積 | 39.02 坪・ 129.00 ㎡ |
| 賃料 | 総額
273,140 円 (税抜)・坪単価
7,000 円/坪 (税抜) 総額 300,454 円(税含む) |
| 共益費 | 総額 78,040 円 (税抜)・坪単価 2,000 円/坪 (税抜) 総額 85,844 円 (税含む) |
| 月額合計 | 総額 351,180 円(税抜)・坪単価 9,000 円(税抜) 総額 386,298 円 (税含む) |
| 敷金 | 6ヶ月 |
| 解約引 | 50% |
| 費用備考 | 賃貸保証加入要/火災保険加入要 |
| 最寄駅 |
谷町線 『
谷町六丁目 』
1 分
谷町線 『 谷町四丁目 』 8 分 長堀鶴見緑地線 『 谷町六丁目 』 1 分 |
| 構造 | 鉄筋コンクリート造 10階建 |
| 築年数 | 1988/1 【新耐震基準】 |
| 設備
|
|
| エレベーター | 1基 |
営業マンの一言 長堀通に面し視認性抜群!派遣会社に最適です。大阪メトロ谷町線 谷町六丁目駅徒歩1分 谷六駅出入り口真ん前のワンフロアワンテナント賃貸ビル |
|

※取引態様:仲介
※上記、金額は募集条件です。 条件交渉など、詳細についてはお問合せ下さい。
※広告作成中に契約済みの場合はご容赦下さい。
※図面等現況が相違する場合は現況優先にてご容赦下さい。
谷町高橋ビルの所在地周辺
ストリートビューを表示▼





堀中 忠久




