千里中央ツインビル別館 4階-No.53505
千里中央ツインビル別館 基本情報
| 種別 | 貸事務所(物件番号:53505) |
|---|---|
| 物件名 | 千里中央ツインビル別館
・千里中央駅徒歩5分・緑り豊かな環境の中でのオフィスビル |
| 住所 | 豊中市新千里西町1-1-4 |
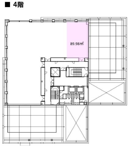
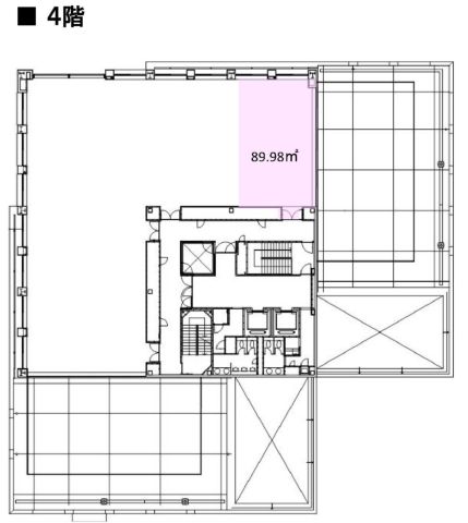
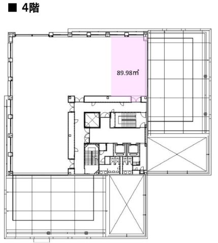
| 所在階 | 4階部分号室 |
| 契約面積 | 27.21 坪・ 89.96 ㎡ |
| 賃料 | お電話・メールにてお問合下さい。 |
| 共益費 | お電話・メールにてお問合下さい。 |
| 月額合計 | お電話・メールにてお問合下さい。 |
| 敷金 | お電話・メールにてお問合下さい。 |
| 最寄駅 | 北大阪急行 『 千里中央 』 8 分 |
| 構造 | 鉄骨鉄筋コンクリート造 4階建 /地下 2 階 |
| 築年数 | 1998/4 【新耐震基準】 |
| 設備
|
|
| エレベーター | 2基 |
営業マンの一言 |
|

※取引態様:仲介
※上記、金額は募集条件です。 条件交渉など、詳細についてはお問合せ下さい。
※広告作成中に契約済みの場合はご容赦下さい。
※図面等現況が相違する場合は現況優先にてご容赦下さい。
千里中央ツインビル別館の所在地周辺
ストリートビューを表示▼







堀中 忠久



