南朝日ビル(RE-020) 1階-No.53560
営業スタッフ紹介
堀中 忠久ホリナカ タダヒサ
南朝日ビル(RE-020) 基本情報
| 種別 | 貸事務所(物件番号:53560) |
|---|---|
| 物件名 | 南朝日ビル(RE-020) |
| 住所 | 大阪市浪速区難波中3-9-3 |
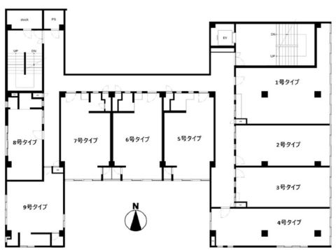
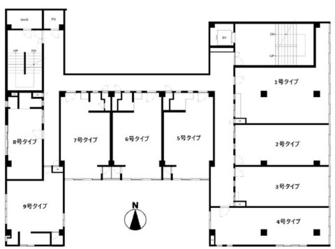
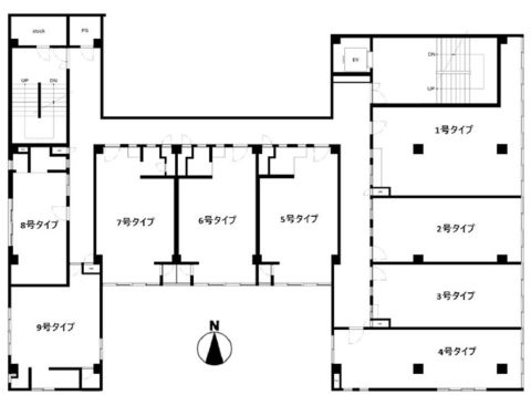
| 所在階 | 1階部分7号室 |
| 契約面積 | 18.02 坪・ 59.58 ㎡ |
| 賃料 | 総額
300,000 円 (税抜)・坪単価
16,648 円/坪 (税抜) 総額 330,000 円(税含む) |
| 共益費 | 総額 10,000 円 (税抜)・坪単価 555 円/坪 (税抜) 総額 11,000 円 (税含む) |
| 月額合計 | 総額 310,000 円(税抜)・坪単価 17,203 円(税抜) 総額 341,000 円 (税含む) |
| 敷金 | 2ヶ月 |
| 礼金 | 2ヶ月 |
| 費用備考 | 賃貸保証加入要/その他諸費用あり |
| 最寄駅 |
御堂筋線 『
なんば 』
3 分
四ツ橋線 『 なんば 』 3 分 |
| 構造 | 鉄筋コンクリート造 8階建 /地下 1 階 |
| 築年数 | 1964/2 (リニューアル: 2020/3 ) |
| 設備
|
|
営業マンの一言 大阪メトロ御堂筋線と大阪メトロ四つ橋線の「なんば駅」徒歩3分 2020年リノベーション完了 設備充実賃貸ビル 事務所・店舗ご相談ください。 |
|

※取引態様:仲介
※上記、金額は募集条件です。 条件交渉など、詳細についてはお問合せ下さい。
※広告作成中に契約済みの場合はご容赦下さい。
※図面等現況が相違する場合は現況優先にてご容赦下さい。
南朝日ビル(RE-020)の所在地周辺
ストリートビューを表示▼
























