CH ビル 3階-No.54645
CH ビル 基本情報
| 種別 | 貸事務所(物件番号:54645) |
|---|---|
| 物件名 | CH ビル |
| 住所 | 大阪市中央区高麗橋2-3-9 |
| 所在階 | 3階部分フロア号室 その他、貸室 |
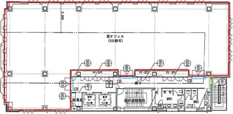
| 契約面積 | 121.55 坪・ 401.82 ㎡ |
| 賃料 | 総額
相談 (税抜)・坪単価
相談 (税抜) 総額 (税含む) |
| 共益費 | 総額 賃料に含む (税抜)・坪単価 賃料に含む (税抜) 総額 賃料に含む (税含む) |
| 月額合計 | 総額 相談(税抜)・坪単価 (税抜) 総額 (税含む) |
| 保証金 | 12ヶ月 |
| 解約引 | 無し |
| 最寄駅 |
堺筋線 『
北浜 』
2 分
御堂筋線 『 淀屋橋 』 6 分 京阪本線 『 淀屋橋 』 6 分 |
| 構造 | 鉄骨鉄筋コンクリート造 8階建 |
| 築年数 | 2025/2 【新耐震基準】 |
| 設備
|
|
| エレベーター | 3基 13人乗 |
営業マンの一言 北浜・淀屋橋エリアの新築オフィスビル!ワンフロア402㎡、3分割も可能なフルスペックオフィスビルです。 |
|

※取引態様:仲介
※上記、金額は募集条件です。 条件交渉など、詳細についてはお問合せ下さい。
※広告作成中に契約済みの場合はご容赦下さい。
※図面等現況が相違する場合は現況優先にてご容赦下さい。
CH ビルの所在地周辺
ストリートビューを表示▼









中阪 浩之









