マキセビル 5階-No.54811
堀中 忠久ホリナカ タダヒサ
マキセビルの豆知識
「マキセビル」は、大阪市西区土佐堀1丁目にございます、賃貸事務所ビル。
地下鉄四つ橋線の「肥後橋駅」より徒歩1分の交通アクセス。
土佐堀川に面しており、土佐堀通りからは1本北に入ったところに位置しますので、利便性抜群ながら、静かな環境。
オフィス拠点としては、おすすめの賃貸物件です。
下層階は20坪弱、上層階は約10坪位の広さの貸室がございます。
賃貸条件は、フリーレント等の交渉ができますので、ご興味がございましたら是非一度ご相談ください。
「肥後橋駅」から京阪電鉄中之島線の「渡辺橋駅」へは、“中之島地下街”で連絡されています。
“肥後橋”界隈は、大阪のビジネス街・淀屋橋に隣接するエリアとして、“中之島フェステバルタワー”や“大同生命大阪本社ビル”“アパホテル大阪肥後橋駅前”等のランドマークビルが建ち並んでいます。
“中之島フェステバルタワー”は、2012年に竣工した超高層ビル。
低層階にフスティバルホールと商業施設のフェスティバルプラザ、中高層階にテナント・オフィスとなっています。
2017年には、西側に“中之島フェステバルタワー・ウエスト”が完成予定です。
マキセビル 基本情報
| 種別 | 貸事務所(物件番号:54811) |
|---|---|
| 物件名 | マキセビル |
| 住所 | 大阪市西区土佐堀1-1-21 |
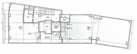
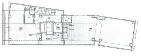
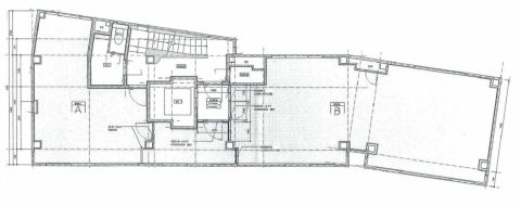
| 所在階 | 5階部分号室 |
| 契約面積 | 7.84 坪・ 25.92 ㎡ |
| 賃料 | 総額
相談 (税抜)・坪単価
相談 (税抜) 総額 (税含む) |
| 共益費 | 総額 賃料に含む (税抜)・坪単価 賃料に含む (税抜) 総額 賃料に含む (税含む) |
| 月額合計 | 総額 相談(税抜)・坪単価 (税抜) 総額 (税含む) |
| 保証金 | 10ヶ月 |
| 解約引 | 全額返金 |
| 費用備考 | 賃貸保証加入要/その他諸費用あり |
| 最寄駅 | 四ツ橋線 『 肥後橋 』 1 分 |
| 構造 | S(鉄骨)造 5階建 |
| 築年数 | 1999/2 【新耐震基準】 |
| 設備
|
|
| エレベーター | 1基 |
営業マンの一言 土佐堀川面すグッドロケーション!大阪メトロ四ツ橋線 肥後橋駅徒歩1分 土佐堀川面すロケーション抜群の賃貸オフィスビルです。 |
|

※取引態様:仲介
※上記、金額は募集条件です。 条件交渉など、詳細についてはお問合せ下さい。
※広告作成中に契約済みの場合はご容赦下さい。
※図面等現況が相違する場合は現況優先にてご容赦下さい。
マキセビルの所在地周辺
物件を再検索する
マキセビル 関連物件
マキセビル 近隣のよく似た坪数の貸事務所
-
日宝肥後橋中央ビル
大阪市西区江戸堀1
四ツ橋線「肥後橋」徒歩1分
7.0坪 -
サンライズ肥後橋ビル
大阪市西区江戸堀1
四ツ橋線「肥後橋」徒歩1分
7.38坪 -
肥後橋双葉ビル
大阪市西区江戸堀1
四ツ橋線「肥後橋」徒歩1分
7.5坪 -
タマリスビル
大阪市西区江戸堀1
四ツ橋線「肥後橋」徒歩3分
8.0坪 -
NAGASAKI 長崎ビル
大阪市西区江戸堀1
四ツ橋線「肥後橋」徒歩2分
6.8坪 -
肥後橋建和ビル
大阪市西区江戸堀1
四ツ橋線「肥後橋」徒歩3分
5.8坪 -
グラン・ビルド江戸堀ビル
大阪市西区江戸堀1
四ツ橋線「肥後橋」徒歩4分
7.0坪 -
西八千代ビル
大阪市西区江戸堀1
四ツ橋線「肥後橋」徒歩3分
6.39坪 -
京町橋八千代ビル
大阪市西区京町堀1
四ツ橋線「肥後橋」徒歩3分
8.99坪 -
福岡ビル
大阪市西区京町堀1
四ツ橋線「肥後橋」徒歩3分
9.37坪































