SERE江坂(セーレ江坂) 1階-No.54918
SERE江坂(セーレ江坂) 基本情報
| 種別 | 店舗(物件番号:54918) |
|---|---|
| 物件名 | SERE江坂(セーレ江坂)
10年定借希望(期間満了時は双方の合意により更新可) |
| 住所 | 吹田市江の木町1-39 |
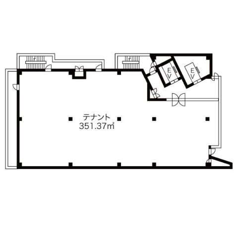
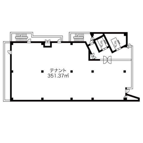
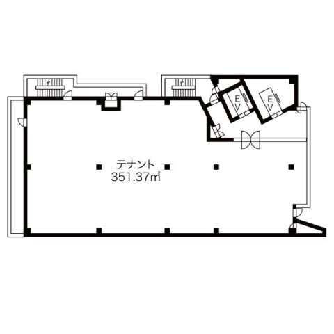
| 所在階 | 1階部分号室 |
| 契約面積 | 103.56 坪・ 342.35 ㎡ |
| 賃料 | お電話・メールにてお問合下さい。 |
| 共益費 | お電話・メールにてお問合下さい。 |
| 月額合計 | お電話・メールにてお問合下さい。 |
| 敷金 | お電話・メールにてお問合下さい。 |
| 最寄駅 | 御堂筋線 『 江坂 』 1 分 |
| 構造 | 鉄骨造 8階建 /地下 1 階 |
| 築年数 | 2008/3 【新耐震基準】 |
| 設備
|
|
| エレベーター | 2基 |
営業マンの一言 ■エステ・美容室・クリニック向き■物販向き■各種教室向き |
|

※取引態様:仲介
※上記、金額は募集条件です。 条件交渉など、詳細についてはお問合せ下さい。
※広告作成中に契約済みの場合はご容赦下さい。
※図面等現況が相違する場合は現況優先にてご容赦下さい。
SERE江坂(セーレ江坂)の所在地周辺
ストリートビューを表示▼













中阪 浩之




