AXIS 新大阪ビル-Ⅱ 3階-No.54998
AXIS 新大阪ビル-Ⅱ 基本情報
| 種別 | 貸事務所(物件番号:54998) | 
|---|---|
| 物件名 | AXIS 新大阪ビル-Ⅱ | 
| 住所 | 大阪市淀川区西中島3-3-9 | 
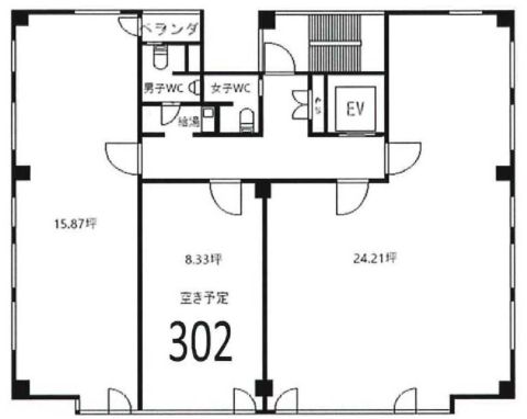
| 所在階 | 3階部分2号室 | 
| 契約面積 | 8.33 坪・ 27.54 ㎡ | 
| 賃料 | 総額
49,980 円 (税抜)・坪単価
6,000 円/坪 (税抜) 総額 54,978 円(税含む) | 
| 共益費 | 総額 16,660 円 (税抜)・坪単価 2,000 円/坪 (税抜) 総額 18,326 円 (税含む) | 
| 月額合計 | 総額 66,640 円(税抜)・坪単価 8,000 円(税抜) 総額 73,304 円 (税含む) | 
| 敷金 | 3ヶ月 | 
| 礼金 | 2ヶ月 | 
| 費用備考 | 賃貸保証加入要/火災保険加入要/その他諸費用あり | 
|  | |
| 最寄駅 | 御堂筋線                  『
                  西中島南方                  』
                  4                  分 御堂筋線 『 新大阪 』 10 分 | 
| 構造 | S(鉄骨)造 8階建 | 
| 築年数 | 1990/11 【新耐震基準】 | 
| 設備 | |
| エレベーター | 1基 | 
| 営業マンの一言 | |

※取引態様:仲介
            ※上記、金額は募集条件です。 条件交渉など、詳細についてはお問合せ下さい。
            ※広告作成中に契約済みの場合はご容赦下さい。
            ※図面等現況が相違する場合は現況優先にてご容赦下さい。
AXIS 新大阪ビル-Ⅱの所在地周辺
物件を再検索する
AXIS 新大阪ビル-Ⅱ 関連物件
AXIS 新大阪ビル-Ⅱ 近隣のよく似た坪数の貸事務所
- 
                    ワークステーション新大阪大阪市東淀川区東中島2 
 御堂筋線「西中島南方」徒歩7分
 5.38坪
- 
                    第三丸善ビル大阪市淀川区木川東3 
 御堂筋線「西中島南方」徒歩5分
 7.89坪
- 
                    新大阪サンアールビル南館大阪市淀川区西中島1 
 御堂筋線「西中島南方」徒歩3分
 6.46坪
- 
                    粉河ビル大阪市淀川区西中島2 
 御堂筋線「西中島南方」徒歩3分
 5.6坪
- 
                    川久センタービル大阪市淀川区西中島2 
 御堂筋線「西中島南方」徒歩8分
 9.98坪
- 
                    壷坂ビル大阪市淀川区西中島2 
 御堂筋線「西中島南方」徒歩3分
 9.5坪
- 
                    NLC新大阪17号館大阪市淀川区西中島3 
 御堂筋線「西中島南方」徒歩3分
 7.59坪
- 
                    新大阪物産ビル大阪市淀川区西中島3 
 御堂筋線「西中島南方」徒歩2分
 8.3坪
- 
                    Auroraビル新大阪(アウロラ新大阪)大阪市淀川区西中島3 
 御堂筋線「西中島南方」徒歩3分
 6.83坪
- 
                    新大阪日大ビル大阪市淀川区西中島3 
 御堂筋線「西中島南方」徒歩1分
 7.5坪

 お問合せリスト・物件リクエスト
 お問合せリスト・物件リクエスト 電話でお問合せ
 電話でお問合せ



 
                  
                


 
                                   



 中阪 浩之
中阪 浩之

























