本町 事務所・店舗 3階-No.55099
本町 事務所・店舗 基本情報
| 種別 | 事務所・店舗(物件番号:55099) |
|---|---|
| 物件名 | 本町 事務所・店舗 |
| 住所 | 大阪市中央区久太郎町4 |
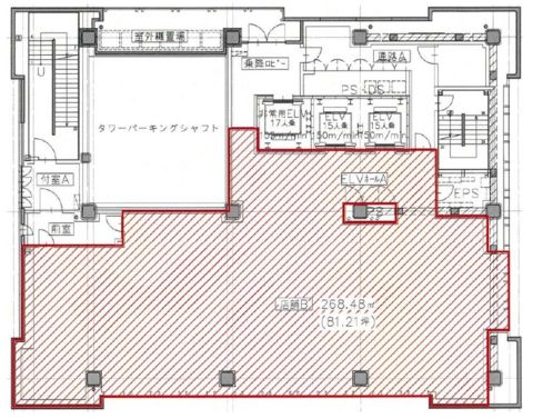
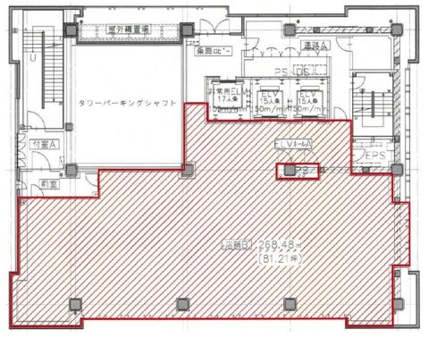
| 所在階 | 3階部分フロア号室 |
| 契約面積 | 81.21 坪・ 268.47 ㎡ |
| 賃料 | 総額
相談 (税抜)・坪単価
相談 (税抜) 総額 (税含む) |
| 共益費 | 総額 賃料に含む (税抜)・坪単価 賃料に含む (税抜) 総額 賃料に含む (税含む) |
| 月額合計 | 総額 相談(税抜)・坪単価 (税抜) 総額 (税含む) |
| 敷金 | 12ヶ月 |
| 解約引 | 全額返金 |
| 最寄駅 |
御堂筋線 『
本町 』
1 分
中央線 『 本町 』 1 分 四ツ橋線 『 本町 』 6 分 |
| 構造 | 鉄骨造 17階建 /地下 1 階 |
| 築年数 | 2019/8 【新耐震基準】 |
| 設備
|
|
| エレベーター | 3基 15人乗 |
営業マンの一言 |
|

※取引態様:仲介
※上記、金額は募集条件です。 条件交渉など、詳細についてはお問合せ下さい。
※広告作成中に契約済みの場合はご容赦下さい。
※図面等現況が相違する場合は現況優先にてご容赦下さい。
本町 事務所・店舗の所在地周辺
物件を再検索する
本町 事務所・店舗 関連物件
本町 事務所・店舗 近隣のよく似た坪数の貸事務所
-
SYNASIA大阪本町ビル(FDS大阪本町)
大阪市中央区本町3
御堂筋線「本町」徒歩1分
88.26坪 -
創建御堂筋ビル
大阪市中央区淡路町3
御堂筋線「本町」徒歩3分
82.57坪 -
御堂筋MTRビル
大阪市中央区淡路町3
御堂筋線「本町」徒歩3分
84.79坪 -
グリーンビル
大阪市中央区瓦町3
御堂筋線「本町」徒歩4分
80.0坪 -
京阪神瓦町ビル
大阪市中央区瓦町4
御堂筋線「本町」徒歩2分
83.72坪 -
船場アルファビル
大阪市中央区備後町3
御堂筋線「本町」徒歩4分
86.5坪 -
メットライフ本町スクエアビル
大阪市中央区本町2
御堂筋線「本町」徒歩3分
89.96坪 -
野村不動産御堂筋本町ビル(旧:東芝大阪)
大阪市中央区本町4
御堂筋線「本町」徒歩0.5分
89.18坪 -
本町オルゴビル
大阪市中央区本町4
御堂筋線「本町」徒歩3分
89.86坪 -
エミービル
大阪市中央区南久宝寺町4
御堂筋線「本町」徒歩4分
87.0坪








中阪 浩之












