行成ビル 4階-No.55123
中阪 浩之ナカサカ ヒロユキ
行成ビルの豆知識
メインエレベーターが“ステキ”にリニューアルしました。
四ツ橋筋に面した1階にコンビニエンスストアの入る白色のビルが行成ビルです。
約6坪から52坪まで幅広い区画がございますので、テナント様希望の広さがきっとみつかるはずです。
新規オフィス開設の方には、うれしいサービスあります。例えば・・・
◎入居後のパソコン接続から立ち上げまでを割安価格で引き受けてくれるPC接続サービス。ネットワーク接続も別途相談できます。
◎社内のパソコンが不調になったり設定に手間取ったりとパソコンの困ったをサポートしてくれるPCヘルプデスク。
◎パソコンや複合機などの事務機器、パーテーション等のリースプラン。
◎リサイクルトナーカレッジを入居者様には特別価格での販売。
等、初期費用など少しでも、テナント様のご負担が軽減できるようにとオーナー様からのご提案です。
オフィス移転の場合、通常解約予告が3~6ヶ月ですので、現オフィスと新オフィスの賃料がダブルでかからないようにする「フリーレントサービス」もございます。
行成ビル 基本情報
| 種別 | 貸事務所(物件番号:55123) |
|---|---|
| 物件名 | 行成ビル
水道代2,000円/月・警備費4,500円/月 |
| 住所 | 大阪市西区新町1-8-1 |
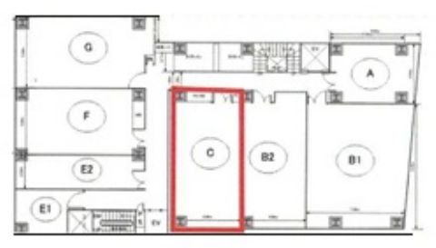
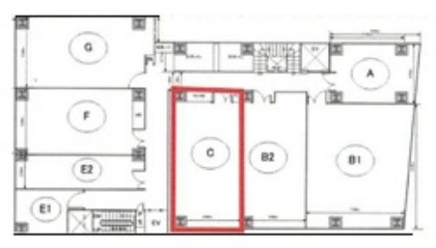
| 所在階 | 4階部分C号室 |
| 契約面積 | 16.7 坪・ 55.21 ㎡ |
| 賃料 | 総額
142,000 円 (税抜)・坪単価
8,503 円/坪 (税抜) 総額 156,200 円(税含む) |
| 共益費 | 総額 16,700 円 (税抜)・坪単価 1,000 円/坪 (税抜) 総額 18,370 円 (税含む) |
| 月額合計 | 総額 158,700 円(税抜)・坪単価 9,503 円(税抜) 総額 174,570 円 (税含む) |
| 敷金 | 639,000 円 |
| 礼金 | 無し |
| 費用備考 | 賃貸保証加入要/火災保険加入要/その他諸費用あり |
| 最寄駅 |
四ツ橋線 『
四ツ橋 』
2 分
御堂筋線 『 心斎橋 』 7 分 |
| 構造 | 鉄骨鉄筋コンクリート造 10階建 |
| 築年数 | 1985/1 【新耐震基準】 (リニューアル: 2011/3 ) |
| 設備
|
|
| エレベーター | 2基 |
営業マンの一言 視認性抜群!1階にローソンさんがある白いオフィスビル。土曜・日曜・祝日もエントランス開放しています!四ツ橋駅すぐの大通りに面した賃貸オフィスビル。約6坪~約50坪まで幅広い区画がございます。管理も良好です。 |
|
| 備考 | 貸し会議室 |

※取引態様:仲介
※上記、金額は募集条件です。 条件交渉など、詳細についてはお問合せ下さい。
※広告作成中に契約済みの場合はご容赦下さい。
※図面等現況が相違する場合は現況優先にてご容赦下さい。
行成ビルの所在地周辺
入居テナント
物件を再検索する
行成ビル 近隣のよく似た坪数の貸事務所
-
四ツ橋日生ビル別館
大阪市西区北堀江1
四ツ橋線「四ツ橋」徒歩1分
16.6坪 -
四ツ橋日生ビル本館
大阪市西区北堀江1
四ツ橋線「四ツ橋」徒歩1分
17.49坪 -
おおきにサイタ・サイタビルヂング
大阪市西区北堀江1
四ツ橋線「四ツ橋」徒歩1分
16.12坪 -
北堀江コレット
大阪市西区北堀江1
四ツ橋線「四ツ橋」徒歩2分
16.69坪 -
RE-019
大阪市西区北堀江1
四ツ橋線「四ツ橋」徒歩1分
18.22坪 -
サンシステム堀江公園前
大阪市西区北堀江1
四ツ橋線「四ツ橋」徒歩3分
19.65坪 -
ローレルコート堀江公園
大阪市西区北堀江1
四ツ橋線「四ツ橋」徒歩3分
16.97坪 -
トムトムⅡ ビル
大阪市西区北堀江1
四ツ橋線「四ツ橋」徒歩3分
15.75坪 -
ノイメゾン堀江
大阪市西区北堀江1
四ツ橋線「四ツ橋」徒歩4分
15.33坪 -
長堀佐野ビル
大阪市西区北堀江1
四ツ橋線「四ツ橋」徒歩3分
17.2坪




























