近畿税理士会館・大同生命ビル 9階-No.5513
近畿税理士会館・大同生命ビル 基本情報
| 種別 | 貸事務所(物件番号:5513) |
|---|---|
| 物件名 | 近畿税理士会館・大同生命ビル |
| 住所 | 大阪市中央区谷町1-5-4 |
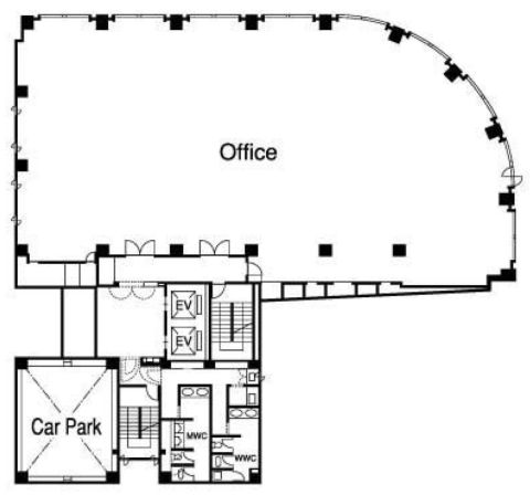
| 所在階 | 9階部分号室 |
| 契約面積 | 45.86 坪・ 151.61 ㎡ |
| 賃料 | お電話・メールにてお問合下さい。 |
| 共益費 | お電話・メールにてお問合下さい。 |
| 月額合計 | お電話・メールにてお問合下さい。 |
| 敷金 | お電話・メールにてお問合下さい。 |
| 最寄駅 |
谷町線 『
天満橋 』
1 分
京阪本線 『 天満橋 』 2 分 |
| 構造 | 鉄骨鉄筋コンクリート造 11階建 /地下 1 階 |
| 築年数 | 1998/7 【新耐震基準】 |
| 設備
|
|
| エレベーター | 2基 |
営業マンの一言 |
|

※取引態様:仲介
※上記、金額は募集条件です。 条件交渉など、詳細についてはお問合せ下さい。
※広告作成中に契約済みの場合はご容赦下さい。
※図面等現況が相違する場合は現況優先にてご容赦下さい。
近畿税理士会館・大同生命ビルの所在地周辺
ストリートビューを表示▼




中阪 浩之








