扇町 店舗 1階-No.55140
営業スタッフ紹介
中阪 浩之ナカサカ ヒロユキ
扇町 店舗 基本情報
| 種別 | 店舗(物件番号:55140) |
|---|---|
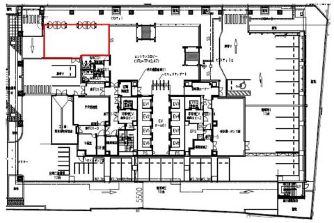
| 物件名 | 扇町 店舗
軽飲食可能!コンビニ大歓迎?!(現状、スケルトン) |
| 住所 | 大阪市北区末広町 |
| 所在階 | 1階部分路面店舗号室 |
| 契約面積 | 29.97 坪・ 99.08 ㎡ |
| 最寄駅 |
堺筋線 『
扇町 』
3 分
谷町線 『 南森町 』 5 分 東西線 『 大阪天満宮 』 7 分 |
| 構造 | 鉄骨造 12階建 |
| 築年数 | / |
| 設備
|
|
| エレベーター | 9基 |
営業マンの一言 大通りに面したハイグレードランドマークオフィスビル |
|

※取引態様:仲介
※上記、金額は募集条件です。 条件交渉など、詳細についてはお問合せ下さい。
※広告作成中に契約済みの場合はご容赦下さい。
※図面等現況が相違する場合は現況優先にてご容赦下さい。
扇町 店舗の所在地周辺
ストリートビューを表示▼

























