UMEDA EAST CROSS 10階-No.55265
営業スタッフ紹介
堀中 忠久ホリナカ タダヒサ
UMEDA EAST CROSS 基本情報
| 種別 | 貸事務所(物件番号:55265) |
|---|---|
| 物件名 | UMEDA EAST CROSS |
| 住所 | 大阪市北区堂山町7-9 |
| 所在階 | 10階部分フロア号室 その他、貸室 |
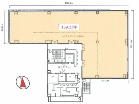
| 契約面積 | 159.33 坪・ 526.71 ㎡ |
| 賃料 | 総額
相談 (税抜)・坪単価
相談 (税抜) 総額 (税含む) |
| 共益費 | 総額 賃料に含む (税抜)・坪単価 賃料に含む (税抜) 総額 賃料に含む (税含む) |
| 月額合計 | 総額 相談(税抜)・坪単価 (税抜) 総額 (税含む) |
| 敷金 | 12ヶ月 |
| 解約引 | 全額返金 |
| 最寄駅 |
谷町線 『
東梅田 』
1 分
阪急線 『 梅田 』 7 分 環状線 『 大阪 』 8 分 |
| 構造 | 鉄骨鉄筋コンクリート造 14階建 |
| 築年数 | 2025/9 【新耐震基準】 |
| 設備
|
|
| エレベーター | 4基 20人乗 |
営業マンの一言 |
|

※取引態様:仲介
※上記、金額は募集条件です。 条件交渉など、詳細についてはお問合せ下さい。
※広告作成中に契約済みの場合はご容赦下さい。
※図面等現況が相違する場合は現況優先にてご容赦下さい。
UMEDA EAST CROSSの所在地周辺
ストリートビューを表示▼
































