四ツ橋 貸事務所 4階-No.55420
四ツ橋 貸事務所 基本情報
| 種別 | 貸事務所(物件番号:55420) |
|---|---|
| 物件名 | 四ツ橋 貸事務所 |
| 住所 | 大阪市西区新町1 |
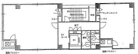
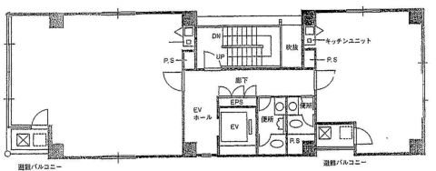
| 所在階 | 4階部分2号室 |
| 契約面積 | 10.72 坪・ 35.44 ㎡ |
| 賃料 | お電話・メールにてお問合下さい。 |
| 共益費 | お電話・メールにてお問合下さい。 |
| 月額合計 | お電話・メールにてお問合下さい。 |
| 敷金 | お電話・メールにてお問合下さい。 |
| 最寄駅 |
四ツ橋線 『
四ツ橋 』
7 分
長堀鶴見緑地線 『 西大橋 』 4 分 |
| 構造 | S(鉄骨)造 10階建 |
| 築年数 | 1991/1 【新耐震基準】 |
| 設備
|
|
| エレベーター | 1基 |
営業マンの一言 ワンフロアー2戸・センターコア |
|

※取引態様:仲介
※上記、金額は募集条件です。 条件交渉など、詳細についてはお問合せ下さい。
※広告作成中に契約済みの場合はご容赦下さい。
※図面等現況が相違する場合は現況優先にてご容赦下さい。
四ツ橋 貸事務所の所在地周辺
物件を再検索する
四ツ橋 貸事務所 近隣のよく似た坪数の貸事務所
-
アークビルディング
大阪市西区北堀江1
四ツ橋線「四ツ橋」徒歩1分
11.09坪 -
AXIS SOUTH四ツ橋ビル(アクシスサウス)
大阪市西区北堀江1
四ツ橋線「四ツ橋」徒歩1分
12.1坪 -
Y’sピア アクセス心斎橋
大阪市西区北堀江1
四ツ橋線「四ツ橋」徒歩1分
13.0坪 -
TOMTOMビル
大阪市西区北堀江1
四ツ橋線「四ツ橋」徒歩2分
12.09坪 -
四ツ橋セントラルビル
大阪市西区新町1
四ツ橋線「四ツ橋」徒歩2分
11.6坪 -
四ツ橋ビルディング
大阪市西区新町1
四ツ橋線「四ツ橋」徒歩直結分
11.0坪 -
新町新興産ビル
大阪市西区新町1
四ツ橋線「四ツ橋」徒歩2分
11.3坪 -
YOTSUBASHI GTC BLDG
大阪市西区新町1
四ツ橋線「四ツ橋」徒歩1分
13.6坪 -
KT堀江
大阪市西区南堀江1
四ツ橋線「四ツ橋」徒歩3分
13.95坪 -
山五ビル
大阪市西区南堀江1
四ツ橋線「四ツ橋」徒歩5分
14.38坪





中阪 浩之












