天満 店舗・事務所 4階-No.55527
天満 店舗・事務所 基本情報
| 種別 | 店舗・事務所(物件番号:55527) |
|---|---|
| 物件名 | 天満 店舗・事務所 |
| 住所 | 大阪市北区天神橋3 |
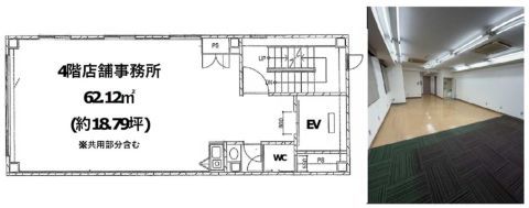
| 所在階 | 4階部分フロア号室 その他、貸室 |
| 契約面積 | 18.79 坪・ 62.12 ㎡ |
| 賃料 | 総額
254,545 円 (税抜)・坪単価
13,547 円/坪 (税抜) 総額 280,000 円(税含む) |
| 共益費 | 総額 賃料に含む (税抜)・坪単価 賃料に含む (税抜) 総額 賃料に含む (税含む) |
| 月額合計 | 総額 254,545 円(税抜)・坪単価 13,547 円(税抜) 総額 280,000 円 (税含む) |
| 敷金 | 2ヶ月 |
| 礼金 | 2ヶ月 |
| 最寄駅 |
環状線 『
天満 』
5 分
谷町線 『 南森町 』 8 分 堺筋線 『 扇町 』 3 分 |
| 構造 | 鉄骨造 5階建 |
| 築年数 | 1995/3 【新耐震基準】 |
| 設備
|
|
| エレベーター | 1基 |
営業マンの一言 天神橋商店街に面した店舗&オフィスの1棟貸(各階、フロア貸もOK!) |
|

※取引態様:仲介
※上記、金額は募集条件です。 条件交渉など、詳細についてはお問合せ下さい。
※広告作成中に契約済みの場合はご容赦下さい。
※図面等現況が相違する場合は現況優先にてご容赦下さい。
天満 店舗・事務所の所在地周辺
ストリートビューを表示▼




中阪 浩之



