クラボウアネックスビル 2階-No.55563
クラボウアネックスビル 基本情報
| 種別 | 貸事務所(物件番号:55563) |
|---|---|
| 物件名 | クラボウアネックスビル |
| 住所 | 大阪市中央区久太郎町2-4-9 |
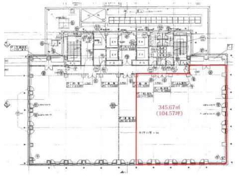
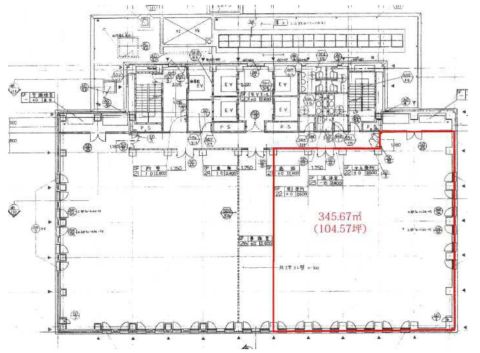
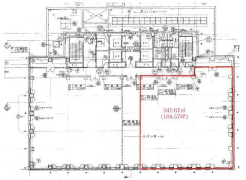
| 所在階 | 2階部分東号室 その他、貸室 |
| 契約面積 | 104.57 坪・ 345.69 ㎡ |
| 賃料 | お電話・メールにてお問合下さい。 |
| 共益費 | お電話・メールにてお問合下さい。 |
| 月額合計 | お電話・メールにてお問合下さい。 |
| 敷金 | お電話・メールにてお問合下さい。 |
| 最寄駅 |
堺筋線 『
堺筋本町 』
1 分
御堂筋線 『 本町 』 4 分 中央線 『 本町 』 3 分 |
| 構造 | 鉄骨鉄筋コンクリート造 14階建 /地下 2 階 |
| 築年数 | 1992/3 【新耐震基準】 |
| 設備
|
|
| エレベーター | 4基 |
営業マンの一言 本町駅至近、格調高いオフィスビル大阪メトロ御堂筋線 本町駅徒歩3分 大阪メトロ堺筋線 堺筋本町駅徒歩1分 中央線利用可能 久太郎町二丁目の大型賃貸物件 設備充実 1992年竣工新耐震基準建物 |
|

※取引態様:仲介
※上記、金額は募集条件です。 条件交渉など、詳細についてはお問合せ下さい。
※広告作成中に契約済みの場合はご容赦下さい。
※図面等現況が相違する場合は現況優先にてご容赦下さい。
クラボウアネックスビルの所在地周辺
クラボウアネックスビル その他の部屋情報
| 階 | 号室 | 坪数 | ㎡数 | 賃料 | 共益費 | 敷金 | |
|---|---|---|---|---|---|---|---|
| 1階 | 東 | 85.26坪 | 281.86㎡ | お電話・メールにて お問い合わせください。 | ![]() |
||
| B1階 | 東 | 132.61坪 | 438.38㎡ | 1,723,930 円 | 賃料に含む | 相談 | ![]() |
物件を再検索する
クラボウアネックスビル 関連物件
クラボウアネックスビル 近隣のよく似た坪数の貸事務所
-
本町DSビル
大阪市中央区安土町1
堺筋線「堺筋本町」徒歩2分
102.45坪 -
大永ビル
大阪市中央区安土町1
堺筋線「堺筋本町」徒歩1分
120.49坪 -
野村不動産大阪ビル
大阪市中央区安土町1
堺筋線「堺筋本町」徒歩1分
104.47坪 -
大阪国際ビルディング
大阪市中央区安土町2
堺筋線「堺筋本町」徒歩1分
101.41坪 -
本町明大ビル
大阪市中央区安土町2
堺筋線「堺筋本町」徒歩3分
127.0坪 -
新瓦町ビル
大阪市中央区瓦町2
堺筋線「堺筋本町」徒歩4分
122.07坪 -
ミラータワービル
大阪市中央区瓦町2
堺筋線「堺筋本町」徒歩4分
142.05坪 -
本町1丁目1棟貸
大阪市中央区本町1
堺筋線「堺筋本町」徒歩1分
120.91坪 -
オーク堺筋本町ビル
大阪市中央区本町1
堺筋線「堺筋本町」徒歩0分
140.65坪 -
堺筋本町センタービル
大阪市中央区本町2
堺筋線「堺筋本町」徒歩0.2分
108.56坪







中阪 浩之













