MF天満橋ビル 4階-No.6056
MF天満橋ビル その他の貸室情報
MF天満橋ビル 基本情報
| 種別 | 貸事務所(物件番号:6056) |
|---|---|
| 物件名 | MF天満橋ビル |
| 住所 | 大阪市中央区谷町1-7-4 |
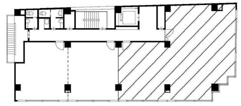
| 所在階 | 4階部分B号室 |
| 契約面積 | 13.1 坪・ 43.31 ㎡ |
| 最寄駅 |
谷町線 『
天満橋 』
1 分
京阪本線 『 天満橋 』 1 分 |
| 構造 | 鉄骨鉄筋コンクリート造 10階建 /地下 1 階 |
| 築年数 | / |
| 設備
|
|
| エレベーター | 1基 |
営業マンの一言 大阪メトロ谷町線 天満橋駅徒歩1分 大通り沿いに建つ一際目立つテナント賃貸オフィスビル |
|

※取引態様:仲介
※上記、金額は募集条件です。 条件交渉など、詳細についてはお問合せ下さい。
※広告作成中に契約済みの場合はご容赦下さい。
※図面等現況が相違する場合は現況優先にてご容赦下さい。
MF天満橋ビルの所在地周辺
物件を再検索する
MF天満橋ビル 近隣のよく似た坪数の貸事務所
-
天満松茂ビル
大阪市北区天満2
谷町線「天満橋」徒歩5分
14.5坪 -
スクエアコート内淡路
大阪市中央区内淡路町2
谷町線「天満橋」徒歩9分
13.36坪 -
ベルヴォア内平野町ビル
大阪市中央区内平野町1
谷町線「天満橋」徒歩5分
13.47坪 -
ニューライフ大手前参番館
大阪市中央区内平野町2
谷町線「天満橋」徒歩8分
14.31坪 -
ロイヤルコーポ大手前
大阪市中央区内平野町2
谷町線「天満橋」徒歩8分
12.93坪 -
GIパールビル
大阪市中央区大手通1
谷町線「天満橋」徒歩5分
10.8坪 -
天満橋千代田ビル2号館
大阪市中央区石町1
谷町線「天満橋」徒歩1分
10.18坪 -
愛生ビル
大阪市中央区島町1
谷町線「天満橋」徒歩2分
12.1坪 -
カノヤビル
大阪市中央区島町1
谷町線「天満橋」徒歩2分
15.0坪 -
天満橋コープ
大阪市中央区島町2
谷町線「天満橋」徒歩3分
10.65坪





丹羽 美智子













