心斎橋 店舗 2階-No.6308
心斎橋 店舗 基本情報
| 種別 | 店舗(物件番号:6308) |
|---|---|
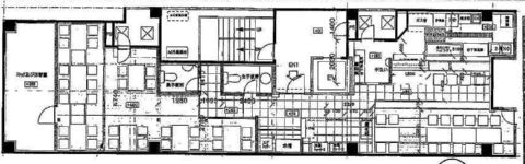
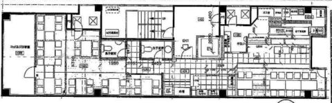
| 物件名 | 心斎橋 店舗
条件変更!居酒屋・寿司の居抜物件 |
| 住所 | 大阪市中央区東心斎橋1 |
| 所在階 | 2階部分201号室 |
| 契約面積 | 36.1 坪・ 119.34 ㎡ |
| 最寄駅 |
御堂筋線 『
心斎橋 』
3 分
四ツ橋線 『 四ツ橋 』 4 分 堺筋線 『 長堀橋 』 4 分 |
| 構造 | 9階建 |
| 築年数 | / |
| 設備
|
|
| エレベーター | 1基 |
営業マンの一言 ■飲食店舗向き |
|

※取引態様:仲介
※上記、金額は募集条件です。 条件交渉など、詳細についてはお問合せ下さい。
※広告作成中に契約済みの場合はご容赦下さい。
※図面等現況が相違する場合は現況優先にてご容赦下さい。
心斎橋 店舗の所在地周辺
物件を再検索する
心斎橋 店舗 関連物件
心斎橋 店舗 近隣のよく似た坪数の貸事務所
-
駒井ビル
大阪市中央区博労町3
御堂筋線「心斎橋」徒歩5分
31.46坪 -
トレスビル
大阪市中央区心斎橋筋1
御堂筋線「心斎橋」徒歩1分
34.35坪 -
アーバンBLD心斎橋
大阪市中央区西心斎橋1
御堂筋線「心斎橋」徒歩3分
32.74坪 -
大塩アメリカ村ビル
大阪市中央区西心斎橋1
御堂筋線「心斎橋」徒歩3分
36.9坪 -
トポロ51ビル(TOPORO51)
大阪市中央区西心斎橋2
御堂筋線「心斎橋」徒歩5分
34.58坪 -
DEP心斎橋ビル
大阪市中央区東心斎橋1
御堂筋線「心斎橋」徒歩5分
39.12坪 -
鶴の巣ビル
大阪市中央区東心斎橋1
御堂筋線「心斎橋」徒歩2分
34.16坪 -
ラインビルド心斎橋
大阪市中央区南船場3
御堂筋線「心斎橋」徒歩3分
34.06坪 -
おおきに南船場ビル
大阪市中央区南船場3
御堂筋線「心斎橋」徒歩3分
30.96坪 -
BRAVI三休橋
大阪市中央区南船場3
御堂筋線「心斎橋」徒歩3分
36.31坪




中阪 浩之












