扇町コーモドビル 1階-No.7408
 
      
      扇町コーモドビル 基本情報
| 種別 | 店舗・事務所(物件番号:7408) | 
|---|---|
| 物件名 | 扇町コーモドビル | 
| 住所 | 大阪市北区天神橋3-8-7 | 
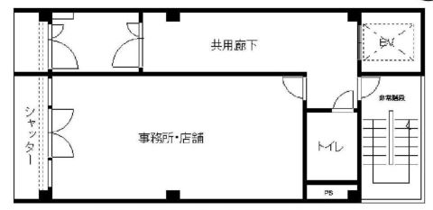
| 所在階 | 1階部分101号室 | 
| 契約面積 | 13.61 坪・ 45.00 ㎡ | 
| 最寄駅 | 堺筋線 『 扇町 』 1 分 | 
| 構造 | S(鉄骨)造 7階建 | 
| 築年数 | 1980/10 | 
| 設備 | |
| エレベーター | 1基 | 
| 営業マンの一言天神橋筋面す 看板使用21000円 ■エステ・美容室・クリニック向き■物販向き | |

※取引態様:仲介
            ※上記、金額は募集条件です。 条件交渉など、詳細についてはお問合せ下さい。
            ※広告作成中に契約済みの場合はご容赦下さい。
            ※図面等現況が相違する場合は現況優先にてご容赦下さい。
扇町コーモドビルの所在地周辺
ストリートビューを表示▼

 お問合せリスト・物件リクエスト
 お問合せリスト・物件リクエスト 電話でお問合せ
 電話でお問合せ



 
                  
                


 
                                   


 中阪 浩之
中阪 浩之


















