神光ビル 6階-No.8358
神光ビル 基本情報
| 種別 | 貸事務所(物件番号:8358) |
|---|---|
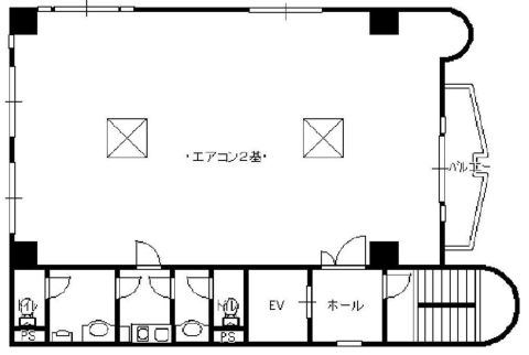
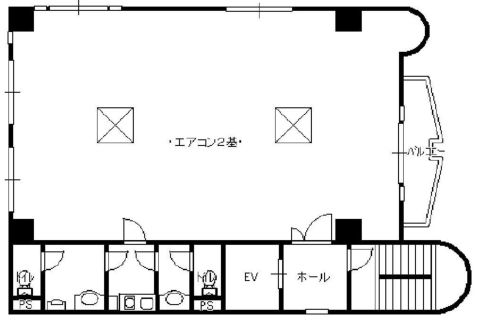
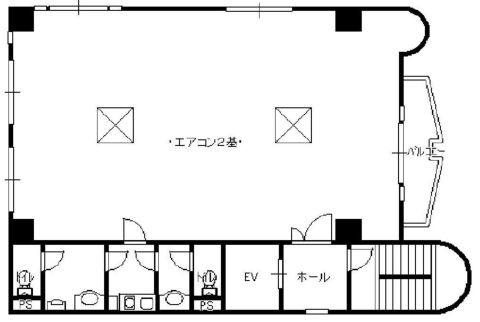
| 物件名 | 神光ビル
弁護士事務所 OAフロア 24時間利用可能 個別空調 |
| 住所 | 大阪市北区西天満2-3-19 |
| 所在階 | 6階部分フロア号室 |
| 契約面積 | 28.62 坪・ 94.62 ㎡ |
| 賃料 | 総額
327,000 円 (税抜)・坪単価
11,426 円/坪 (税抜) 総額 359,700 円(税含む) |
| 共益費 | 総額 賃料に含む (税抜)・坪単価 賃料に含む (税抜) 総額 賃料に含む (税含む) |
| 月額合計 | 総額 327,000 円(税抜)・坪単価 11,426 円(税抜) 総額 359,700 円 (税含む) |
| 保証金 | 660,000 円 |
| 解約引 | スライド |
| 最寄駅 |
御堂筋線 『
淀屋橋 』
6 分
東西線 『 北新地 』 6 分 |
| 構造 | 鉄筋コンクリート造 8階建 |
| 築年数 | 1993/9 【新耐震基準】 |
| 設備
|
|
| エレベーター | 1基 |
営業マンの一言 高級感漂うハイグレードオフィス!裁判所西隣の賃貸ビル。弁護士の方におすすめ物件 |
|

※取引態様:仲介
※上記、金額は募集条件です。 条件交渉など、詳細についてはお問合せ下さい。
※広告作成中に契約済みの場合はご容赦下さい。
※図面等現況が相違する場合は現況優先にてご容赦下さい。
神光ビルの所在地周辺
物件を再検索する
神光ビル 近隣のよく似た坪数の貸事務所
-
和光ホームズ堂島ビル
大阪市北区西天満2
御堂筋線「淀屋橋」徒歩5分
26.35坪 -
堂島ビルヂング
大阪市北区西天満2
御堂筋線「淀屋橋」徒歩5分
27.9坪 -
西天満ビルディング2(旧:H.C.S西天満)
大阪市北区西天満4
御堂筋線「淀屋橋」徒歩7分
29.59坪 -
サンメゾン北浜ラヴィッサ
大阪市中央区北浜2
御堂筋線「淀屋橋」徒歩2分
28.51坪 -
住友ビルディング4号館
大阪市中央区北浜4
御堂筋線「淀屋橋」徒歩3分
28.42坪 -
大阪朝日生命館
大阪市中央区高麗橋4
御堂筋線「淀屋橋」徒歩1分
26.09坪 -
テラソマビル(TERASOMAビル)
大阪市中央区高麗橋4
御堂筋線「淀屋橋」徒歩3分
27.32坪 -
損保ジャパン道修町ビル
大阪市中央区道修町3
御堂筋線「淀屋橋」徒歩4分
29.0坪 -
サンビル
大阪市中央区道修町4
御堂筋線「淀屋橋」徒歩3分
28.06坪 -
平野町イシカワビル
大阪市中央区平野町4
御堂筋線「淀屋橋」徒歩5分
28.42坪




中阪 浩之












