関西トラスト御堂筋ビル 11階-No.8413
営業スタッフ紹介
中阪 浩之ナカサカ ヒロユキ
関西トラスト御堂筋ビルの豆知識
「御堂筋ビル」は、大阪市中央区西心斎橋1丁目にございます、賃貸事務所・テナントビル。
大阪のメインストリート“御堂筋”に面し、大丸心斎橋店の西向かいに建つ、地下1階・地上11階建て。
周辺は百貨店やホテル、シャネルやディオールなどのブランドショップ、H&Mやユニクロ等のファストファッション店が立ち並び、日本のシャンゼリゼ通りと例えられる、好ロケーション。
「御堂筋ビル」9階には、セミナーや展示会場に使用できる「御堂筋ホール」、3階には貸し会議室があり、利便性も高いビジネス拠点です。
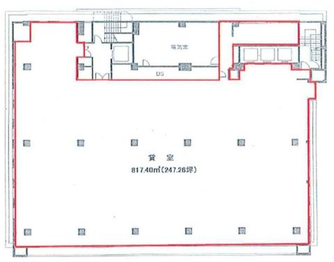
基準階面積は約250坪ございますが、最小区画は約22坪~の賃貸も可能です。
大阪市営地下鉄御堂筋線の「心斎橋駅」7番8番出入口より徒歩1分。
北は新大阪・梅田、南はなんば・天王寺へのフットワークも良い交通至便です。
関西トラスト御堂筋ビル 基本情報
| 種別 | 事務所・店舗(物件番号:8413) |
|---|---|
| 物件名 | 関西トラスト御堂筋ビル
ワンフロア貸し、飲食店舗ご相談ください。 |
| 住所 | 大阪市中央区西心斎橋1-4-5 |
| 所在階 | 11階部分フロア号室 |
| 契約面積 | 233.45 坪・ 771.74 ㎡ |
| 最寄駅 |
御堂筋線 『
心斎橋 』
1 分
長堀鶴見緑地線 『 心斎橋 』 2 分 四ツ橋線 『 四ツ橋 』 4 分 |
| 構造 | 鉄骨鉄筋コンクリート造 11階建 /地下 1 階 |
| 築年数 | 1979/11 (リニューアル: 平成21年 ) |
| 設備
|
|
| エレベーター | 4基 |
営業マンの一言 心斎橋の賃貸テナント・事務所ビル大阪メインストリート・御堂筋沿いの賃貸テンナントオフィスビル ■エステ・美容室・クリニック向き |
|
| 備考 | 免震・耐震補強/貸し会議室/リフレッシュルーム/日祝、来店可能サービス型オフィス |

※取引態様:仲介
※上記、金額は募集条件です。 条件交渉など、詳細についてはお問合せ下さい。
※広告作成中に契約済みの場合はご容赦下さい。
※図面等現況が相違する場合は現況優先にてご容赦下さい。
関西トラスト御堂筋ビルの所在地周辺
ストリートビューを表示▼
物件を再検索する
関西トラスト御堂筋ビル 関連物件
関西トラスト御堂筋ビル 近隣のよく似た坪数の貸事務所
-
心斎橋アルティ・イン
大阪市中央区西心斎橋2
御堂筋線「心斎橋」徒歩5分
207.71坪 -
(仮称)心斎橋プロジェクト
大阪市中央区南船場3
御堂筋線「心斎橋」徒歩1分
269.8坪



























