SRビル本町東ビル 6階-No.8918
中阪 浩之ナカサカ ヒロユキ
SRビル本町東ビルの豆知識
「紀和TB材木町ビル」は、大阪市中央区材木町にございます松屋町筋に面した賃貸オフィスビル。
10階建ての落ち着いた外観が目を惹くオフィス物件。
地下鉄堺筋線・中央線の「堺筋本町駅」から徒歩6分、谷町線・中央線の「谷町四丁目駅」から徒歩8分の立地です。
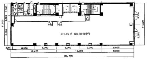
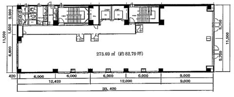
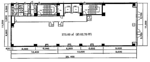
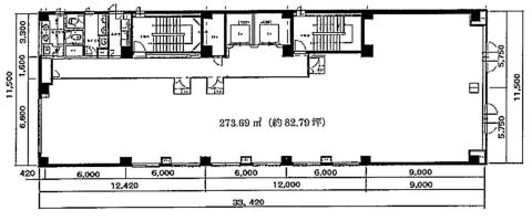
基準階・約80坪の広さがございますが、20坪ほどの分割も相談可能です。
また、通常小さな区画にした場合、採光が採れなくなるケースが多いのですが、「紀和TB材木町ビル」は角地に建つビルですので、ご心配はいりません。
エレベーター2基、個別空調、機械警備、OAフロアに、男女別シャワートイレ、駐車場併設と安心・安全・快適なオフィス空間が整っております。
貸室賃貸条件は十分な交渉ができ、駐車場も格安で借りることが可能なプランもございます。
周辺は、居住用の建物や公園も多く、落ち着いた環境。静かなオフィスをご希望の企業様には最適な物件となっておりますので、是非ご検討くださいませ。
SRビル本町東ビル 基本情報
| 種別 | 貸事務所(物件番号:8918) |
|---|---|
| 物件名 | SRビル本町東ビル |
| 住所 | 大阪市中央区材木町1-8 |
| 所在階 | 6階部分3号室 その他、貸室 |
| 契約面積 | 58.48 坪・ 193.33 ㎡ |
| 賃料 | 総額
526,320 円 (税抜)・坪単価
9,000 円/坪 (税抜) 総額 578,952 円(税含む) |
| 共益費 | 総額 賃料に含む (税抜)・坪単価 賃料に含む (税抜) 総額 賃料に含む (税含む) |
| 月額合計 | 総額 526,320 円(税抜)・坪単価 9,000 円(税抜) 総額 578,952 円 (税含む) |
| 敷金 | 6ヶ月 |
| 礼金 | 無し |
| 最寄駅 |
堺筋線 『
堺筋本町 』
6 分
谷町線 『 谷町四丁目 』 8 分 中央線 『 堺筋本町 』 8 分 |
| 構造 | 鉄骨鉄筋コンクリート造 10階建 |
| 築年数 | 1988/6 【新耐震基準】 |
| 設備
|
|
| エレベーター | 2基 |
営業マンの一言 東西南の三方が道路面に面した採光の良い賃貸事務所ビルです。松屋町筋に面す、美築オフィスビル全室採光良し、駐車場が必要なお客様に最適です。 |
|
| 備考 | オートロック |

※取引態様:仲介
※上記、金額は募集条件です。 条件交渉など、詳細についてはお問合せ下さい。
※広告作成中に契約済みの場合はご容赦下さい。
※図面等現況が相違する場合は現況優先にてご容赦下さい。
SRビル本町東ビルの所在地周辺
SRビル本町東ビル その他の部屋情報
入居テナント
物件を再検索する
SRビル本町東ビル 関連物件
SRビル本町東ビル 近隣のよく似た坪数の貸事務所
-
トヤマビル東館
大阪市中央区安土町1
堺筋線「堺筋本町」徒歩2分
53.9坪 -
大阪国際ビルディング
大阪市中央区安土町2
堺筋線「堺筋本町」徒歩1分
59.28坪 -
DPスクエア堺筋本町(旧、堺筋サテライトビル)
大阪市中央区淡路町1
堺筋線「堺筋本町」徒歩5分
52.24坪 -
瓦町ダイワビル(旧:がんすい)
大阪市中央区瓦町2
堺筋線「堺筋本町」徒歩2分
53.84坪 -
三星RSビル
大阪市中央区久太郎町1
堺筋線「堺筋本町」徒歩4分
50.5坪 -
三星中央別館ビル
大阪市中央区久太郎町1
堺筋線「堺筋本町」徒歩2分
55.0坪 -
三栄ビル
大阪市中央区久太郎町1
堺筋線「堺筋本町」徒歩1分
53.0坪 -
船場ダイヤモンドビル
大阪市中央区久太郎町2
堺筋線「堺筋本町」徒歩1分
60.0坪 -
ナカイ農人橋ビル
大阪市中央区農人橋2
堺筋線「堺筋本町」徒歩5分
54.85坪 -
堺筋本町千寿ビル
大阪市中央区農人橋3
堺筋線「堺筋本町」徒歩5分
52.0坪
































