堺筋東野村ビル 1階-No.9998
堺筋東野村ビル その他の貸室情報
堺筋東野村ビル 基本情報
| 種別 | 貸事務所(物件番号:9998) |
|---|---|
| 物件名 | 堺筋東野村ビル |
| 住所 | 大阪市中央区備後町1-4-5 |
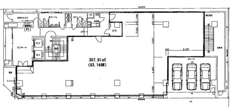
| 所在階 | 1階部分号室 |
| 契約面積 | 93.14 坪・ 307.91 ㎡ |
| 最寄駅 |
堺筋線 『
堺筋本町 』
3 分
堺筋線 『 北浜 』 4 分 中央線 『 堺筋本町 』 3 分 |
| 構造 | 鉄筋コンクリート造 6階建 /地下 1 階 |
| 築年数 | 1975/7 (リニューアル: 2002/10 ) |
| 設備
|
|
| エレベーター | 2基 |
営業マンの一言 2002年10月リニューアル2002年(平成14年)10月 全館リニューアル。角地に建ち貸室採光良 |
|

※取引態様:仲介
※上記、金額は募集条件です。 条件交渉など、詳細についてはお問合せ下さい。
※広告作成中に契約済みの場合はご容赦下さい。
※図面等現況が相違する場合は現況優先にてご容赦下さい。
堺筋東野村ビルの所在地周辺
ストリートビューを表示▼




中阪 浩之









